Listing Address:
2550 Waring Lane, Malabar, FL 32950
Price: $749,900
MLS # 982165
Property Type: Residential
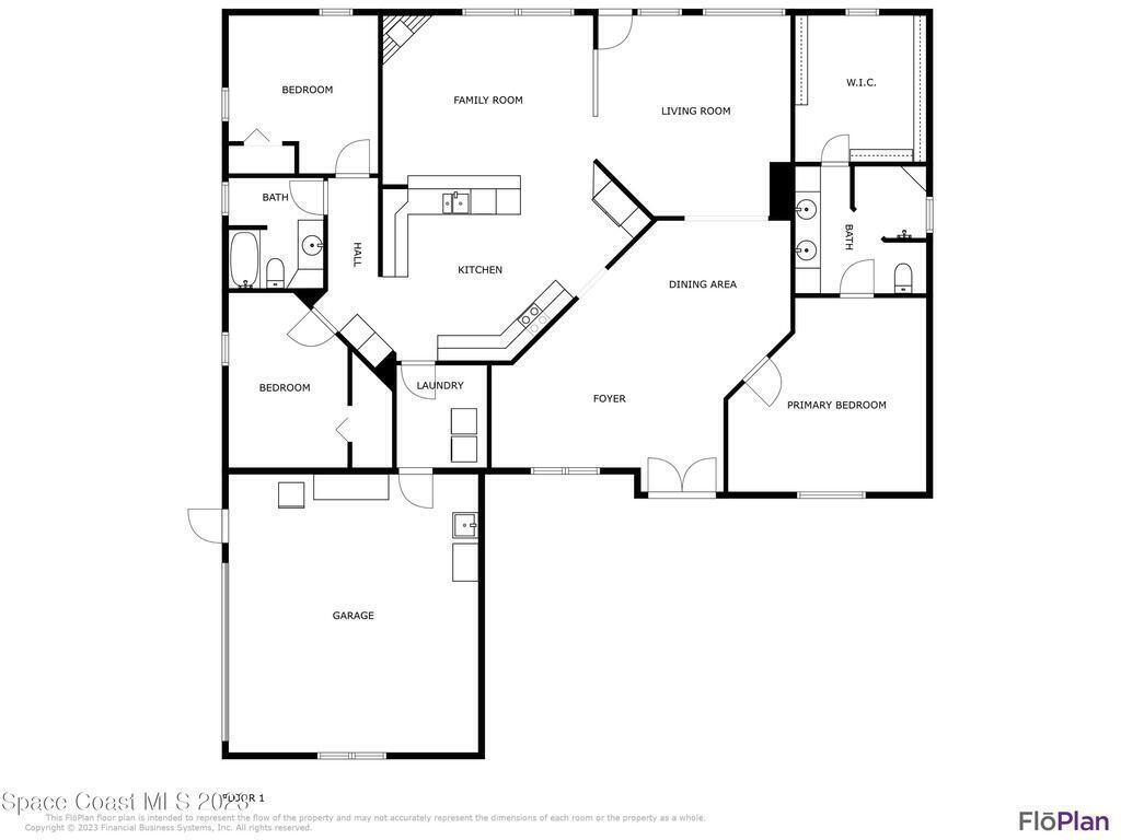
2,143 Total SqFt.
Beds: 3
2,143 Living SqFt.
Baths: 2.00
Year Built: 1994
This property is Closed. Please contact us for similar properties.
Property Description:
Welcome to your private tropical paradise! Exquisite, move-in-ready pool home nestled in the heart of Malabar, boasting 3 bedrooms and 2 bathrooms in a thoughtfully designed split floorplan. The home features an expansive kitchen with 42'' cherry cabinets, sleek quartz countertops, stainless steel appliances and a stylish aesthetic with laminate flooring throughout. Unwind in complete privacy on your 1.4-acre fenced lot, where stunning sunsets by the pool and a soothing view of the water lotus pond with giant flowers await you. No more storage or parking woes with the 30x40 concrete block detached garage! TWO BRAND NEW ROOFS (December 2023) on both the home and the detached garage, AC 2021!Call today to make your appointment!
2/15/2024
Sold Price: $719,900
Property Listing Details for 2550 Waring Lane, Malabar, FL 32950
Exterior Features
Storm Shutters
Interior Features
Breakfast Bar , Ceiling Fan(s) , Open Floorplan , Primary Bathroom - Tub with Shower , Primary Downstairs , Split Bedrooms , Walk-In Closet(s)
Equipment / Appliances
Dishwasher , Electric Water Heater , Microwave , Refrigerator , Water Softener Owned
Pool
Pool Description
Electric Heat , In Ground , Screen Enclosure , Waterfall
Utilities
Additional Rooms
Family Room , Great Room , Laundry
Waterfront
No
Parking
Attached , Detached , RV Access/Parking
Split Floorplan
HOA
HOA Dues
0.00
Construction
Block , Concrete , Stucco
Floor
Tile , Vinyl
Exterior Finish
Roof Type
Shingle
D. Basile Real Estate, LLC lists and sells Real Estate and Luxury homes in Melbourne Beach, Merritt Island, Cocoa Beach, Lansing Island, Tortoise Island, Barefoot Bay, Cape Canaveral, Cocoa, Grant Valkaria, Indialantic, Indian Harbour Beach, Malabar, Melbourne, Palm Bay, Rockledge, Satellite Beach, Titusville, West Melbourne and surrounding areas in Brevard.
This listing is courtesy of Dragon Point Real Estate. Property Listing Data contained within the D Basile Real Estate website is the property of Brevard MLS and is provided for consumers looking to purchase real estate. Any other use is prohibited. We are not responsible for errors and omissions on this web site. All information contained herein should be deemed reliable but not guaranteed, all representations are approximate, and individual verification is recommended.
Quick MLS Search
Choose the Area, City, then Type of the property you're looking for

Share us on your network!