Listing Address:
7198 Mooring Way, Grant-Valkaria, FL 32949
Price: $399,990
MLS # 978010
Property Type: Residential
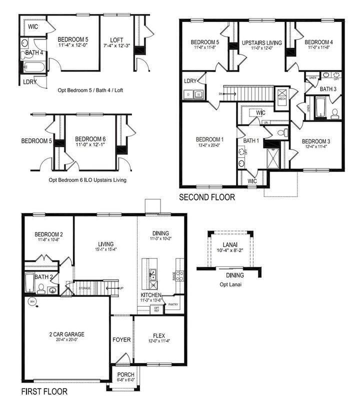
2,601 Total SqFt.
Beds: 5
2,601 Living SqFt.
Baths: 3.00
Year Built: 2024
This property is Closed. Please contact us for similar properties.
Property Description:
**AVAILABLE NOW - MOVE IN READY** Concrete block construction on both floors! This plan offers a flex space that could be a dedicated home office or formal dining room. A bedroom with full bath, central living room and open kitchen with extended island complete the main level. Upstairs features a generous owner's suite and a secondary living room perfect for family movie nights and the second floor laundry room simplifies an everyday chore! Photos used for illustrative purposes and do not depict actual home. Amenities include clubhouse, community pool, fitness center, pickle and bocce ball, dog park and more.
8/28/2024
Sold Price: $399,990
Property Listing Details for 7198 Mooring Way, Grant-Valkaria, FL 32949
Exterior Features
Interior Features
Kitchen Island , Pantry , Primary Bathroom - Tub with Shower , Split Bedrooms , Walk-In Closet(s)
Equipment / Appliances
Dishwasher , Disposal , Electric Range , Electric Water Heater , Microwave , Refrigerator
Pool
Pool Description
Utilities
Cable Available , Water Available
Additional Rooms
None
Waterfront
No
Parking
Attached
Split Floorplan
HOA
HOA Dues
0.00
Construction
Block , Concrete , Stucco
Floor
Carpet , Tile
Exterior Finish
Roof Type
Shingle
Fireplace
0
County
Brevard
Gated Community
Furnishings
Unfurnished
Home Warranty
Tax Year
2023
Tax Amount
76.59
55+ Community
Subdivision
Listing Status
Closed
Property Status
Home Style
Home View
Lake , Pond , Water
Street
7198 Mooring Way, Grant-Valkaria, 32949
Zip Code
D. Basile Real Estate, LLC lists and sells Real Estate and Luxury homes in Melbourne Beach, Merritt Island, Cocoa Beach, Lansing Island, Tortoise Island, Barefoot Bay, Cape Canaveral, Cocoa, Grant Valkaria, Indialantic, Indian Harbour Beach, Malabar, Melbourne, Palm Bay, Rockledge, Satellite Beach, Titusville, West Melbourne and surrounding areas in Brevard.
This listing is courtesy of D.R.Horton Realty of Melbourne. Property Listing Data contained within the D Basile Real Estate website is the property of Brevard MLS and is provided for consumers looking to purchase real estate. Any other use is prohibited. We are not responsible for errors and omissions on this web site. All information contained herein should be deemed reliable but not guaranteed, all representations are approximate, and individual verification is recommended.
Quick MLS Search
Choose the Area, City, then Type of the property you're looking for

Share us on your network!