Listing Address:
175 E Nasa Boulevard, Melbourne, FL 32901
Price: $2,000
MLS # 961591
Property Type: Commercial
This property is Closed. Please contact us for similar properties.
Property Description:
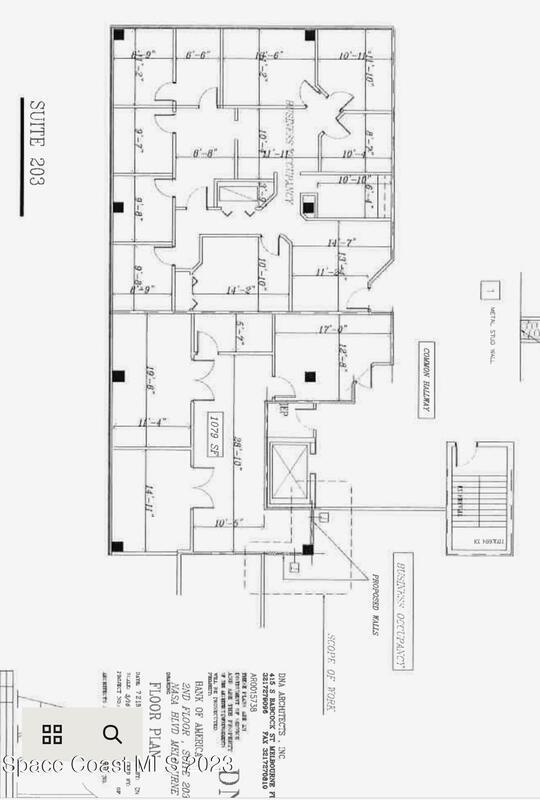
1956 Sq ft of Professional office space available on Nasa Blvd in the heart of Melbourne. Neighboring suites are doctors and attorneys. 4 offices, a reception area, break room and conference room. Close to the hospital, airport, restaurants and Melbourne High. Building has an elevator.
12/22/2023
Sold Price: $2,000
Property Listing Details for 175 E Nasa Boulevard, Melbourne, FL 32901
Total SqFt.
0
Property Sub-Type
Business
Sale / Lease
Lease
Lot Acres
1.30
County
Brevard
Tax Amount
$33,613 (2022)
D. Basile Real Estate, LLC lists and sells Real Estate and Luxury homes in Melbourne Beach, Merritt Island, Cocoa Beach, Lansing Island, Tortoise Island, Barefoot Bay, Cape Canaveral, Cocoa, Grant Valkaria, Indialantic, Indian Harbour Beach, Malabar, Melbourne, Palm Bay, Rockledge, Satellite Beach, Titusville, West Melbourne and surrounding areas in Brevard.
This listing is courtesy of RE/MAX Alternative Realty. Property Listing Data contained within the D Basile Real Estate website is the property of Brevard MLS and is provided for consumers looking to purchase real estate. Any other use is prohibited. We are not responsible for errors and omissions on this web site. All information contained herein should be deemed reliable but not guaranteed, all representations are approximate, and individual verification is recommended.
Quick MLS Search
Choose the Area, City, then Type of the property you're looking for

Share us on your network!