Listing Address:
51 NW Carolina Street, West Melbourne, FL 32904
Price: $1,900
MLS # 958701
Property Type: Commercial
This property is Closed. Please contact us for similar properties.
Property Description:
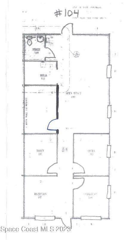
1,425 sf office or retail space just off New Haven Ave. Building signage available on the side of 1100 New Haven Ave for greater visibility. Property is available March 1st. Unit fully refurbished in March 2023
3/21/2023
Sold Price: $16
Property Listing Details for 51 NW Carolina Street, West Melbourne, FL 32904
Total SqFt.
0
Property Sub-Type
Business
Sale / Lease
Lease
Lot Acres
0.52
County
Brevard
Tax Amount
$8,161 (2022)
D. Basile Real Estate, LLC lists and sells Real Estate and Luxury homes in Melbourne Beach, Merritt Island, Cocoa Beach, Lansing Island, Tortoise Island, Barefoot Bay, Cape Canaveral, Cocoa, Grant Valkaria, Indialantic, Indian Harbour Beach, Malabar, Melbourne, Palm Bay, Rockledge, Satellite Beach, Titusville, West Melbourne and surrounding areas in Brevard.
This listing is courtesy of SouthTrend Realty. Property Listing Data contained within the D Basile Real Estate website is the property of Brevard MLS and is provided for consumers looking to purchase real estate. Any other use is prohibited. We are not responsible for errors and omissions on this web site. All information contained herein should be deemed reliable but not guaranteed, all representations are approximate, and individual verification is recommended.
Quick MLS Search
Choose the Area, City, then Type of the property you're looking for

Share us on your network!