Listing Address:
1801 Penn Street, Melbourne, FL 32901
Price: $4,966
MLS # 957750
Property Type: Commercial
This property is Active. Please contact us for similar properties.
Property Description:
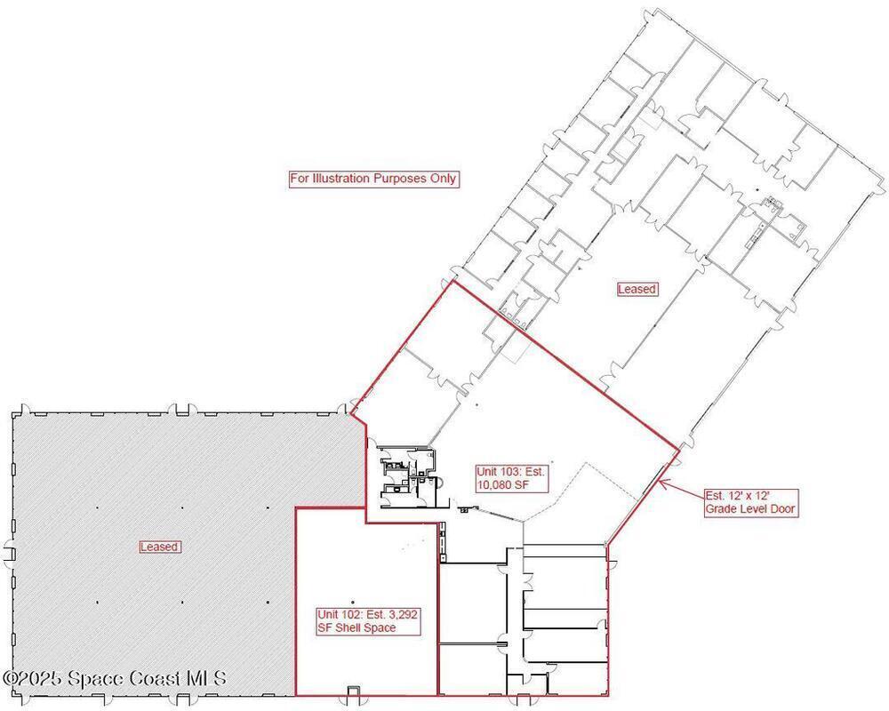
3,292 SF shell space available in the heart of Melbourne!! Property is located off of Gateway Drive within walking distance of the Melbourne International Airport, Northrop Grumman, L3Harris, GE and all of the other employers in the area! Interior of unit has concrete flooring and exposed ceiling throughout. Dimensions estimated 50' wide x 66' deep +/-. Ceiling height 16' +/-. Landlord would consider providing a TI allowance subject to lease terms and tenant credit. Zoning is City of Melbourne Light Industrial (M-1) which makes this unit suitable for High-Tech / Office / Engineering / R&D type uses. Make this the future home for your business today!
Property Listing Details for 1801 Penn Street, Melbourne, FL 32901
Total SqFt.
0
Property Sub-Type
Office
Sale / Lease
Lease
Lot Acres
3.92
County
Brevard
Tax Amount
$42,393 (2022)
D. Basile Real Estate, LLC lists and sells Real Estate and Luxury homes in Melbourne Beach, Merritt Island, Cocoa Beach, Lansing Island, Tortoise Island, Barefoot Bay, Cape Canaveral, Cocoa, Grant Valkaria, Indialantic, Indian Harbour Beach, Malabar, Melbourne, Palm Bay, Rockledge, Satellite Beach, Titusville, West Melbourne and surrounding areas in Brevard.
This listing is courtesy of The Ullian Realty Corporation. Property Listing Data contained within the D Basile Real Estate website is the property of Brevard MLS and is provided for consumers looking to purchase real estate. Any other use is prohibited. We are not responsible for errors and omissions on this web site. All information contained herein should be deemed reliable but not guaranteed, all representations are approximate, and individual verification is recommended.
Quick MLS Search
Choose the Area, City, then Type of the property you're looking for

Share us on your network!