Listing Address:
275 Manor Drive, Merritt Island, FL 32952
Price: $1,350,000
MLS # 952528
Property Type: Commercial
This property is Closed. Please contact us for similar properties.
Property Description:
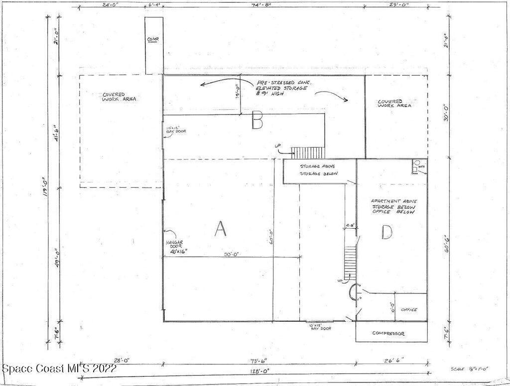
Excellent opportunity to purchase a Stand Alone Warehouse with YARD in the heart of Merritt Island! 1st Floor 8,440 SF + 2nd Floor 1,902 SF = 10,342 SF Total. Property borders the Merritt Island Airport and has a 40' Wide x 16' Tall +/- airplane hanger bifold door. Interior of warehouse has 12'' +/- thick concrete flooring. Two additional 10' wide x 12' tall +/- grade level overhead doors. Warehouse ceiling height ranges 16' - 17' 6'' +/-. Property is located 1-mile south of State Road 520 which is a direct connector between Interstate 95, US1 and SR A1A. Close proximity to the Cape Canaveral Hospital, Merritt Square Mall, Downtown Cocoa Village and all of the other Education, Office, Industrial, Restaurant and Beaches that the area has to offer. Make this the future home for your busines
2/28/2023
Sold Price: $1,300,000
Property Listing Details for 275 Manor Drive, Merritt Island, FL 32952
Total SqFt.
10,342
Property Sub-Type
Industrial
Sale / Lease
Sale
Lot Acres
0.86
County
Brevard
Tax Amount
$8,614 (2022)
D. Basile Real Estate, LLC lists and sells Real Estate and Luxury homes in Melbourne Beach, Merritt Island, Cocoa Beach, Lansing Island, Tortoise Island, Barefoot Bay, Cape Canaveral, Cocoa, Grant Valkaria, Indialantic, Indian Harbour Beach, Malabar, Melbourne, Palm Bay, Rockledge, Satellite Beach, Titusville, West Melbourne and surrounding areas in Brevard.
This listing is courtesy of The Ullian Realty Corporation. Property Listing Data contained within the D Basile Real Estate website is the property of Brevard MLS and is provided for consumers looking to purchase real estate. Any other use is prohibited. We are not responsible for errors and omissions on this web site. All information contained herein should be deemed reliable but not guaranteed, all representations are approximate, and individual verification is recommended.
Quick MLS Search
Choose the Area, City, then Type of the property you're looking for

Share us on your network!