Listing Address:
202 West Drive, Melbourne, FL 32904
Price: $2,500,000
MLS # 937291
Property Type: Commercial
This property is Closed. Please contact us for similar properties.
Property Description:
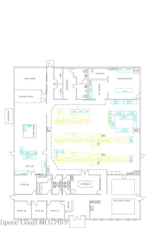
100% occupied single tenant manufacturing building. 6 year NNN lease expires 10/31/2027$183,600 NOI for 2022-2023 lease year2% annual base rent increasesConcrete block constructionNew Duro Last membrane roof installed in 2017 with 20 year warranty52 parking spacesElectrical 1600 Amp - 3 phase - 120/208 v100% air conditionedBuilding recently paintedCity water & sewer
10/28/2022
Sold Price: $2,385,000
Property Listing Details for 202 West Drive, Melbourne, FL 32904
Subdivision
Total SqFt.
12,000
Property Sub-Type
Industrial
Sale / Lease
Sale
Lot Acres
1.86
County
Brevard
Tax Amount
$12,603 (2021)
D. Basile Real Estate, LLC lists and sells Real Estate and Luxury homes in Melbourne Beach, Merritt Island, Cocoa Beach, Lansing Island, Tortoise Island, Barefoot Bay, Cape Canaveral, Cocoa, Grant Valkaria, Indialantic, Indian Harbour Beach, Malabar, Melbourne, Palm Bay, Rockledge, Satellite Beach, Titusville, West Melbourne and surrounding areas in Brevard.
This listing is courtesy of The Ullian Realty Corporation. Property Listing Data contained within the D Basile Real Estate website is the property of Brevard MLS and is provided for consumers looking to purchase real estate. Any other use is prohibited. We are not responsible for errors and omissions on this web site. All information contained herein should be deemed reliable but not guaranteed, all representations are approximate, and individual verification is recommended.
Quick MLS Search
Choose the Area, City, then Type of the property you're looking for

Share us on your network!