Listing Address:
460 Shinn Avenue, West Melbourne, FL 32904
Price: $695,000
MLS # 920774
Property Type: Commercial
This property is Closed. Please contact us for similar properties.
Property Description:
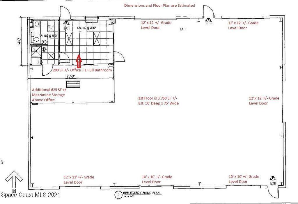
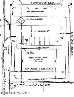
Excellent opportunity to purchase a stand-alone automotive / warehouse building in the HEART of Melbourne's industrial market. Subject property is 3,750 SF CBS & Metal warehouse + 625 SF bonus upstairs mezzanine. Built in 2018, interior has 200 SF office, 1 full bathroom, and the rest is open warehouse. Ceiling height ranges 17' 6'' - 20' 6'' +/-. There are SIX grade level overhead doors (four 12' x 12' +/-) (two 10' x 10' +/-). Utilities include City Water/Sewer & 3-Phase Power. There are 8 paved/striped parking spaces and the entire building/lot has 6'' paved concrete slab. Zoning allows Automotive, Manufacturing, Warehousing, Wholesaling & More! Close proximity to I-95, Melbourne, International Airport, Northrop Grumman, L3Harris. Make this the future home for your business today!!
3/15/2022
Sold Price: $675,000
Property Listing Details for 460 Shinn Avenue, West Melbourne, FL 32904
Total SqFt.
3,750
Property Sub-Type
Industrial
Sale / Lease
Sale
Lot Acres
0.50
County
Brevard
Tax Amount
$5,495 (2021)
D. Basile Real Estate, LLC lists and sells Real Estate and Luxury homes in Melbourne Beach, Merritt Island, Cocoa Beach, Lansing Island, Tortoise Island, Barefoot Bay, Cape Canaveral, Cocoa, Grant Valkaria, Indialantic, Indian Harbour Beach, Malabar, Melbourne, Palm Bay, Rockledge, Satellite Beach, Titusville, West Melbourne and surrounding areas in Brevard.
This listing is courtesy of The Ullian Realty Corporation. Property Listing Data contained within the D Basile Real Estate website is the property of Brevard MLS and is provided for consumers looking to purchase real estate. Any other use is prohibited. We are not responsible for errors and omissions on this web site. All information contained herein should be deemed reliable but not guaranteed, all representations are approximate, and individual verification is recommended.
Quick MLS Search
Choose the Area, City, then Type of the property you're looking for

Share us on your network!