Listing Address:
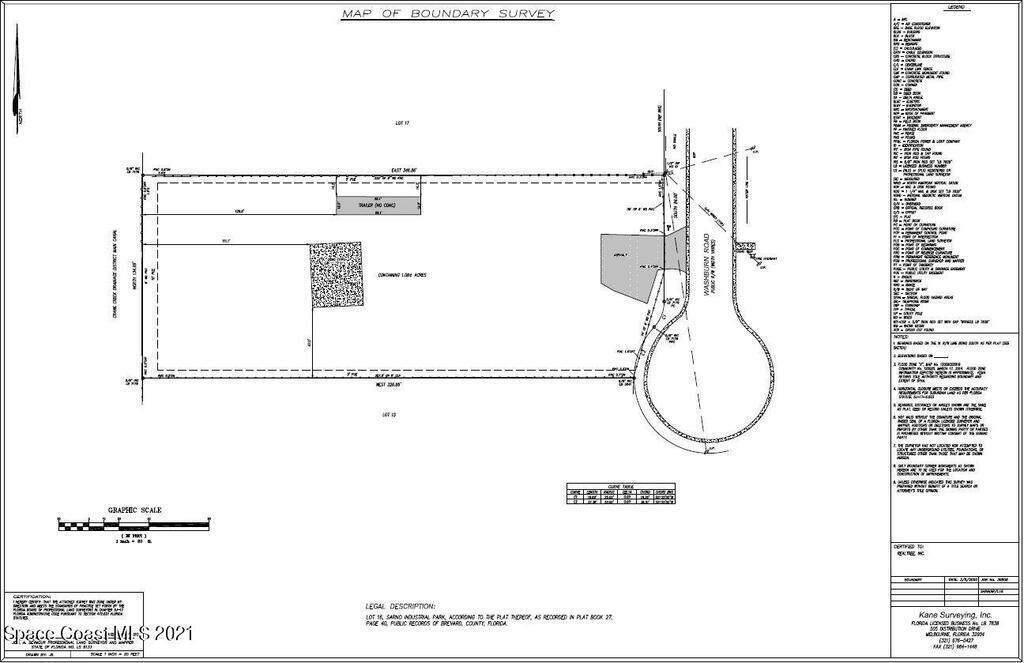
598 Washburn Road, Melbourne, FL 32934
Price: $295,000
MLS # 912308
Property Type: Vacant Land
This property is Closed. Please contact us for similar properties.
Property Description:
Excellent opportunity to purchase 1 Acre of fenced & cleared industrial land in the heart of Melbourne. Lot has roughly 135' frontage on Washburn Road and is approximately 346' deep. Zoning is City of Melbourne Light Industrial (M1) which allows anything from Outdoor Storage to Warehousing to Light Assembly/Manufacturing & more!! Available utilities include City Water, Septic & FPL. Property is approximately halfway between Wickham Road & Interstate 95 and has close proximity to the Melbourne International Airport, and all of the shopping, dining, office & daycare that Melbourne has to offer. Make this the future home for your business today!!
9/03/2021
Sold Price: $287,550
Property Listing Details for 598 Washburn Road, Melbourne, FL 32934
Lot Sub-Type
Unimproved Land
Gated?
HOA
HOA Dues
0.00 ()
Utilities
Subdivision
Frontage
Financing
Posession
D. Basile Real Estate, LLC lists and sells Real Estate and Luxury homes in Melbourne Beach, Merritt Island, Cocoa Beach, Lansing Island, Tortoise Island, Barefoot Bay, Cape Canaveral, Cocoa, Grant Valkaria, Indialantic, Indian Harbour Beach, Malabar, Melbourne, Palm Bay, Rockledge, Satellite Beach, Titusville, West Melbourne and surrounding areas in Brevard.
This listing is courtesy of The Ullian Realty Corporation. Property Listing Data contained within the D Basile Real Estate website is the property of Brevard MLS and is provided for consumers looking to purchase real estate. Any other use is prohibited. We are not responsible for errors and omissions on this web site. All information contained herein should be deemed reliable but not guaranteed, all representations are approximate, and individual verification is recommended.
Quick MLS Search
Choose the Area, City, then Type of the property you're looking for

Share us on your network!