Listing Address:
93 Brevard Avenue, Cocoa, FL 32922
Price: $1,600,000
MLS # 898697
Property Type: Commercial
This property is Closed. Please contact us for similar properties.
Property Description:
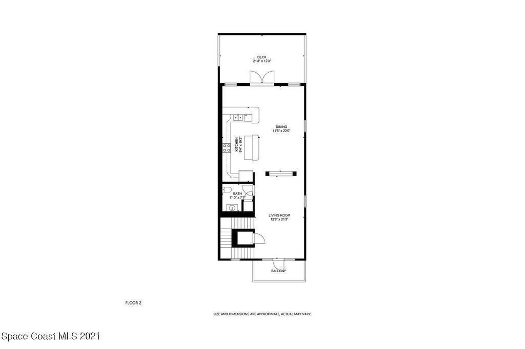
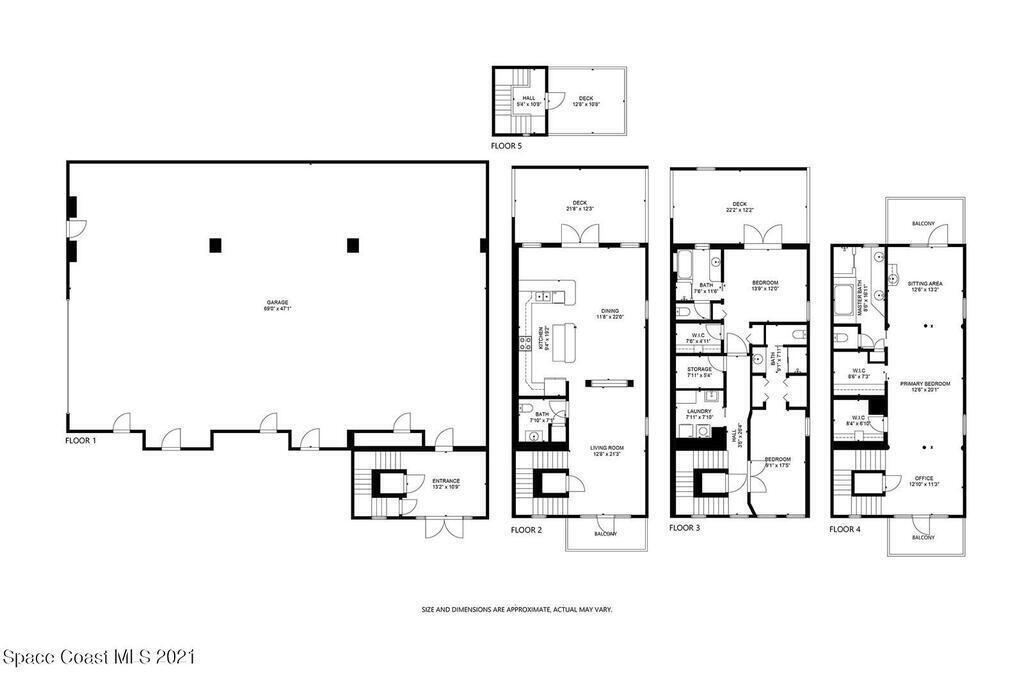
3-unit, 5 level luxurious European-style town-homes boast dramatic views overlooking the Indian River. Feel the Parisian Maison-influenced design with its terraces, balconies, private elevators, and marble floors throughout. There are also individual, private rooftop sky decks to soak up some rays or view rocket launches. The units each contain whole house vacuum, central fire system, security system, and stainless-steel appliances. There is also a private garage (6 spaces), hurricane impact windows, and steel reinforced concrete panels. This property comes fully furnished and is absolutely turn-key. Stroll beautiful Historic Cocoa Village, only steps away, and enjoy romantic walks, 60 plus shops, casual and formal dining, as well as Cocoa Village Playhouse Theater.
4/22/2021
Sold Price: $1,600,000
Property Listing Details for 93 Brevard Avenue, Cocoa, FL 32922
Total SqFt.
10,024
Property Sub-Type
Multi Family
Sale / Lease
Sale
Lot Acres
0.12
County
Brevard
Tax Amount
$19,619 (2020)
D. Basile Real Estate, LLC lists and sells Real Estate and Luxury homes in Melbourne Beach, Merritt Island, Cocoa Beach, Lansing Island, Tortoise Island, Barefoot Bay, Cape Canaveral, Cocoa, Grant Valkaria, Indialantic, Indian Harbour Beach, Malabar, Melbourne, Palm Bay, Rockledge, Satellite Beach, Titusville, West Melbourne and surrounding areas in Brevard.
This listing is courtesy of Sperry CGA-Flint Brokers. Property Listing Data contained within the D Basile Real Estate website is the property of Brevard MLS and is provided for consumers looking to purchase real estate. Any other use is prohibited. We are not responsible for errors and omissions on this web site. All information contained herein should be deemed reliable but not guaranteed, all representations are approximate, and individual verification is recommended.
Quick MLS Search
Choose the Area, City, then Type of the property you're looking for

Share us on your network!