Listing Address:
2760 Business Center Boulevard, Melbourne, FL 32940
Price: $3,195,000
MLS # 881907
Property Type: Commercial
This property is Closed. Please contact us for similar properties.
Property Description:
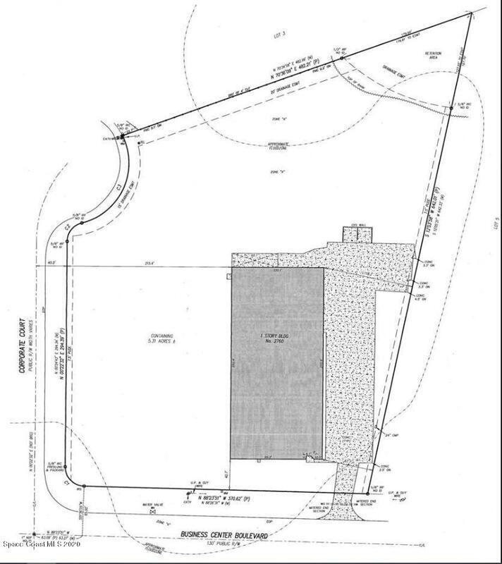
31,080 SF Light Industrial Zoned Warehouse on 5.51 Acres of Land. Property can be used as a warehouse with outdoor storage OR can be further developed as an investment for the new owner. This Light Industrial property is centrally located in Brevard County with close proximity to I-95 & Pineda Causeway which provide quick access to the surrounding community. Building details include: CBS, pre-engineered metal frame, metal roof & metal panel. Heavy 3-phase electric with overhead compressed air lines. 16' Wide x 12' high Overhead Door & 12' x 12' door. 100% HVAC office, reception, break, conference area. Approximate clear height ranges from 14' on the perimeter to 18' at center of building.
8/01/2022
Sold Price: $2,800,000
Property Listing Details for 2760 Business Center Boulevard, Melbourne, FL 32940
Total SqFt.
31,708
Property Sub-Type
Industrial
Sale / Lease
Sale
Lot Acres
5.51
County
Brevard
Tax Amount
$22,887 (2019)
D. Basile Real Estate, LLC lists and sells Real Estate and Luxury homes in Melbourne Beach, Merritt Island, Cocoa Beach, Lansing Island, Tortoise Island, Barefoot Bay, Cape Canaveral, Cocoa, Grant Valkaria, Indialantic, Indian Harbour Beach, Malabar, Melbourne, Palm Bay, Rockledge, Satellite Beach, Titusville, West Melbourne and surrounding areas in Brevard.
This listing is courtesy of The Ullian Realty Corporation. Property Listing Data contained within the D Basile Real Estate website is the property of Brevard MLS and is provided for consumers looking to purchase real estate. Any other use is prohibited. We are not responsible for errors and omissions on this web site. All information contained herein should be deemed reliable but not guaranteed, all representations are approximate, and individual verification is recommended.
Quick MLS Search
Choose the Area, City, then Type of the property you're looking for

Share us on your network!