Listing Address:
6957 W Old Nasa Boulevard, West Melbourne, FL 32904
Price: $4,975
MLS # 879216
Property Type: Commercial
This property is Closed. Please contact us for similar properties.
Property Description:
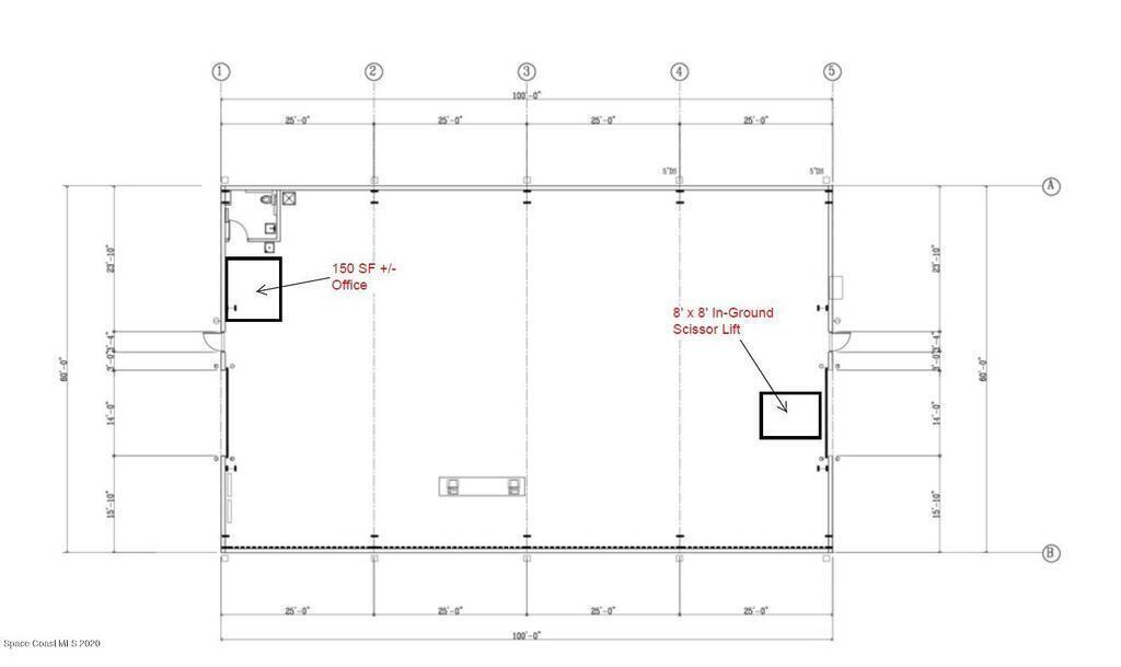
Part of a Two building property. Building 1 Ready to Occupy and has DirectFrontage on Old Nasa.Clear Span Warehouse with Sealed Concrete FlooringRoughly 18' Clear Ceiling Height; Large Exhaust Fan.Two 14' x 14' +/- Motorized Overhead DoorsIn-Ground Hydraulic Lift; LED Lighting.150 SF +/- HVAC OfficeFenced Yard Area.2 Driveways for Trucking.Extremely Clean & Well Maintained Warehouse.Available 11/1/20. Landlord is a Florida Licensed Real Estate Broker.Located in the heart of the Melbourne Airport Business Park with direct frontage on Old Nasa Boulevard. Building is centrally located and is easily accessible via nearby Wickham Road, US1, and the three I-95 Interchanges within a 10-minute drive. Surrounding businesses include L3Harris, Northrop Grumman, DRS, and the Ai
1/27/2021
Sold Price: $8
Property Listing Details for 6957 W Old Nasa Boulevard, West Melbourne, FL 32904
Total SqFt.
0
Property Sub-Type
Industrial
Sale / Lease
Lease
Lot Acres
1.25
County
Brevard
Tax Amount
$0 (2019)
D. Basile Real Estate, LLC lists and sells Real Estate and Luxury homes in Melbourne Beach, Merritt Island, Cocoa Beach, Lansing Island, Tortoise Island, Barefoot Bay, Cape Canaveral, Cocoa, Grant Valkaria, Indialantic, Indian Harbour Beach, Malabar, Melbourne, Palm Bay, Rockledge, Satellite Beach, Titusville, West Melbourne and surrounding areas in Brevard.
This listing is courtesy of The Ullian Realty Corporation. Property Listing Data contained within the D Basile Real Estate website is the property of Brevard MLS and is provided for consumers looking to purchase real estate. Any other use is prohibited. We are not responsible for errors and omissions on this web site. All information contained herein should be deemed reliable but not guaranteed, all representations are approximate, and individual verification is recommended.
Quick MLS Search
Choose the Area, City, then Type of the property you're looking for

Share us on your network!