Listing Address:
1755 N Highway A1a , Indialantic, FL 32903
Price: $3,500
MLS # 1073885
Property Type: Rental
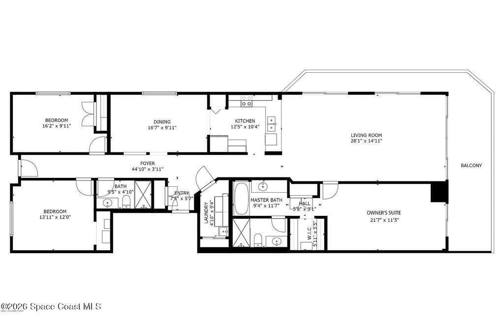
1,908 Total SqFt.
Beds: 3
1,908 Living SqFt.
Baths: 2.00
Lot Description:
This property is Active. Please contact us for similar properties.
Property Description:
Experience coastal living at its finest in this beautiful 3-bedroom, 2-bath condo located in the sought-after Bella Vista community of Indialantic. Enjoy spacious living, dining, and lounge areas designed for comfort and relaxation. Step out onto your panoramic balcony and take in breathtaking ocean views--perfect for morning coffee or evening sunsets. The expansive primary suite offers plenty of space for any furniture setup and features dual closets, a garden tub, and a separate shower for a true retreat experience.This home also includes a washer and dryer, a private one-car garage with additional storage, and access to a refreshing community pool. Located in a charming coastal neighborhood, you'll enjoy a relaxed lifestyle with convenient access to everything you need. Don't miss this opportunity to live by the ocean--schedule your tour today!*** SECTION 8 IS NOT ACCEPTED.
Property Listing Details for 1755 N Highway A1a , Indialantic, FL 32903
Exterior Features
Interior Features
Built-in Features , Ceiling Fan(s) , Other
Equipment / Appliances
Convection Oven , Dishwasher , Disposal , Dryer , Gas Range , Microwave , Other , Refrigerator , Washer
Pool
No
Pool Description
Utilities
Additional Rooms
None
Waterfront
Yes
Water Type
Parking
Split Floorplan
HOA
HOA Dues
0.00
Construction
Floor
Exterior Finish
Roof Type
Fireplace
0
County
Brevard
Gated Community
Furnishings
Furnished
Home Warranty
Tax Year
0
Tax Amount
0.00
55+ Community
Subdivision
Listing Status
Active
Property Status
Home Style
Other
Home View
Street
1755 N Highway A1a , Indialantic, 32903
Zip Code
D. Basile Real Estate, LLC lists and sells Real Estate and Luxury homes in Melbourne Beach, Merritt Island, Cocoa Beach, Lansing Island, Tortoise Island, Barefoot Bay, Cape Canaveral, Cocoa, Grant Valkaria, Indialantic, Indian Harbour Beach, Malabar, Melbourne, Palm Bay, Rockledge, Satellite Beach, Titusville, West Melbourne and surrounding areas in Brevard.
This listing is courtesy of Innovation Property Management. Property Listing Data contained within the D Basile Real Estate website is the property of Brevard MLS and is provided for consumers looking to purchase real estate. Any other use is prohibited. We are not responsible for errors and omissions on this web site. All information contained herein should be deemed reliable but not guaranteed, all representations are approximate, and individual verification is recommended.
Quick MLS Search
Choose the Area, City, then Type of the property you're looking for

Share us on your network!