Listing Address:
1335 S Carpenter Road, Titusville, FL 32796
Price: $745,000
MLS # 1073863
Property Type: Residential
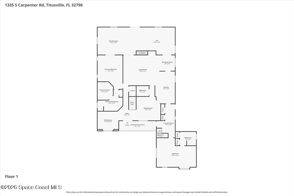
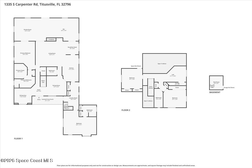
3,946 Total SqFt.
Beds: 4
3,946 Living SqFt.
Baths: 4.00 ½ Baths: 1
Year Built: 1986
This property is Active. Please contact us for similar properties.
Property Description:
Welcome to a truly special lakefront retreat offering timeless charm, generous space, and endless opportunities for entertaining. This 4-bedroom, 3.5-bath home features nearly 4,000 sq ft, including two primary suites and a spacious 15x45 game room with beautiful lake views.Inside, you'll find rich wood details, a stunning wood-burning fireplace, and expansive living areas designed for both relaxing and gathering. The remodeled primary bath with custom closet adds comfort and functionality.Enjoy your own backyard oasis with a resurfaced pool, spa, and fully fenced yard with multiple access gates--perfect for entertaining or unwinding.Thoughtfully maintained with impact windows and front door, newer HVAC systems, water heater, and a 2011 roof with a 50-year shingle warranty. The home is on well with the option to convert to city water, and appliances convey.A rare opportunity to own a character-filled lakefront home with exceptional indoor and outdoor living.
Property Listing Details for 1335 S Carpenter Road, Titusville, FL 32796
Exterior Features
Impact Windows
Interior Features
Breakfast Bar , Breakfast Nook , Built-in Features , Ceiling Fan(s) , Central Vacuum , Entrance Foyer , Pantry , Primary Bathroom - Shower No Tub , Primary Downstairs , Split Bedrooms , Vaulted Ceiling(s) , Walk-In Closet(s) , Wet Bar
Equipment / Appliances
Dishwasher , Dryer , Electric Range , Electric Water Heater , Freezer , Microwave , Refrigerator , Washer
Pool
Pool Description
Fenced , In Ground
Utilities
Cable Connected , Electricity Connected , Propane , Water Available
Additional Rooms
None
Waterfront
Yes
Water Type
Parking
Attached , Circular Driveway , Garage , Garage Door Opener
Split Floorplan
HOA
HOA Dues
0.00
Construction
Brick , Frame , Stucco
Floor
Carpet , Tile , Vinyl
Exterior Finish
Roof Type
Shingle
D. Basile Real Estate, LLC lists and sells Real Estate and Luxury homes in Melbourne Beach, Merritt Island, Cocoa Beach, Lansing Island, Tortoise Island, Barefoot Bay, Cape Canaveral, Cocoa, Grant Valkaria, Indialantic, Indian Harbour Beach, Malabar, Melbourne, Palm Bay, Rockledge, Satellite Beach, Titusville, West Melbourne and surrounding areas in Brevard.
This listing is courtesy of Coastal Life Properties LLC. Property Listing Data contained within the D Basile Real Estate website is the property of Brevard MLS and is provided for consumers looking to purchase real estate. Any other use is prohibited. We are not responsible for errors and omissions on this web site. All information contained herein should be deemed reliable but not guaranteed, all representations are approximate, and individual verification is recommended.
Quick MLS Search
Choose the Area, City, then Type of the property you're looking for

Share us on your network!