Listing Address:
1826 Woodberry Circle, Melbourne, FL 32935
Price: $460,000
MLS # 1073823
Property Type: Residential
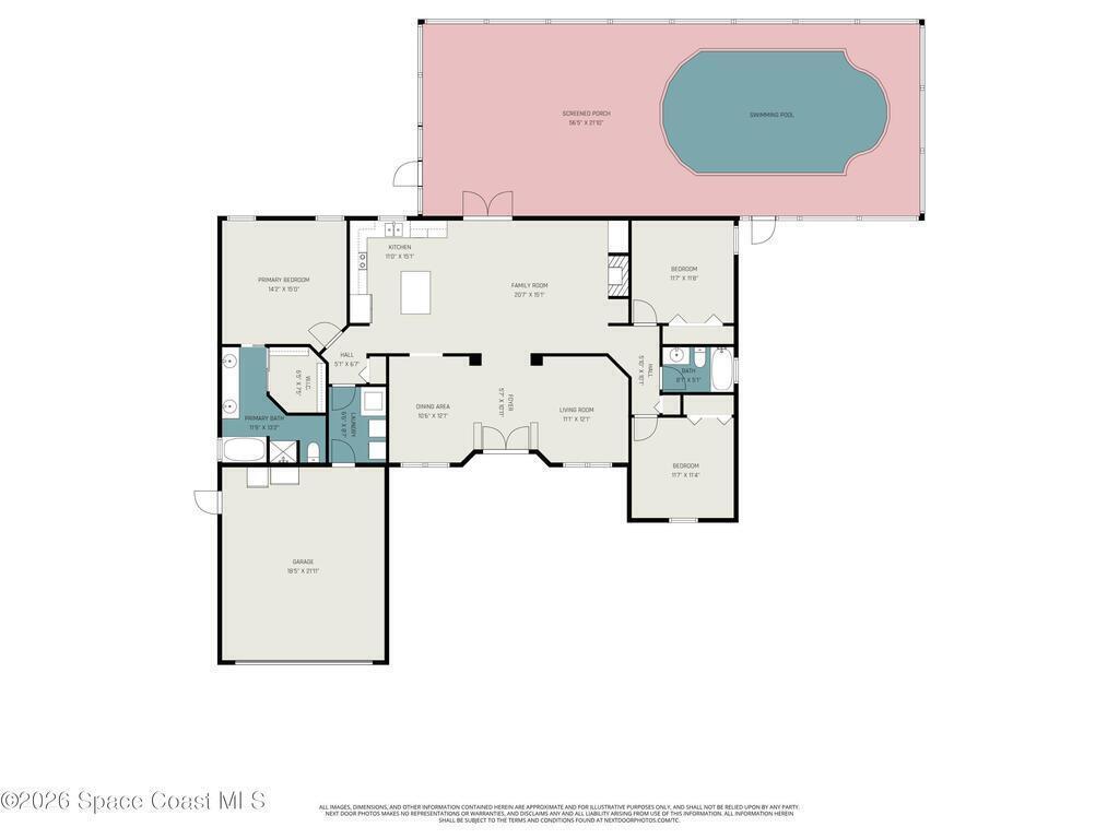
1,716 Total SqFt.
Beds: 3
1,716 Living SqFt.
Baths: 2.00
Year Built: 1993
This property is Active. Please contact us for similar properties.
Property Description:
POOL HOME! Large, fenced yard and expansive screened pool and patio. No rear neighbors. High ceilings and functional floor plan features kitchen with center island that is wide open to large family room with fireplace. Dining room is adjacent and has easy access to kitchen. There is also a formal living room. Roof replaced 10/2024. A/C also replaced 2024. Great central location, close to Wikham park, Eastern Florida State College, The King Center, shopping, restaurants, beaches and more!
Property Listing Details for 1826 Woodberry Circle, Melbourne, FL 32935
Exterior Features
Interior Features
Ceiling Fan(s) , Eat-in Kitchen , Entrance Foyer , Kitchen Island , Open Floorplan , Primary Bathroom -Tub with Separate Shower , Skylight(s) , Split Bedrooms , Vaulted Ceiling(s) , Walk-In Closet(s)
Equipment / Appliances
Dishwasher , Disposal , Electric Range , Microwave , Refrigerator
Pool
Pool Description
In Ground , Screen Enclosure
Utilities
Cable Available , Electricity Connected , Water Connected
Additional Rooms
None
Waterfront
No
Parking
Garage
Split Floorplan
HOA
HOA Dues
0.00
Construction
Block , Stucco
Floor
Carpet , Tile
Exterior Finish
Roof Type
Shingle
Fireplace
0
County
Brevard
Gated Community
Furnishings
Unfurnished
Home Warranty
Tax Year
2025
Tax Amount
3729.27
55+ Community
Subdivision
Listing Status
Active
Property Status
Home Style
Ranch
Home View
Pool
Street
1826 Woodberry Circle, Melbourne, 32935
Zip Code
D. Basile Real Estate, LLC lists and sells Real Estate and Luxury homes in Melbourne Beach, Merritt Island, Cocoa Beach, Lansing Island, Tortoise Island, Barefoot Bay, Cape Canaveral, Cocoa, Grant Valkaria, Indialantic, Indian Harbour Beach, Malabar, Melbourne, Palm Bay, Rockledge, Satellite Beach, Titusville, West Melbourne and surrounding areas in Brevard.
This listing is courtesy of RE/MAX Elite. Property Listing Data contained within the D Basile Real Estate website is the property of Brevard MLS and is provided for consumers looking to purchase real estate. Any other use is prohibited. We are not responsible for errors and omissions on this web site. All information contained herein should be deemed reliable but not guaranteed, all representations are approximate, and individual verification is recommended.
Quick MLS Search
Choose the Area, City, then Type of the property you're looking for

Share us on your network!