Listing Address:
1264 Gordon Avenue, Rockledge, FL 32955
Price: $435,000
MLS # 1073406
Property Type: Residential
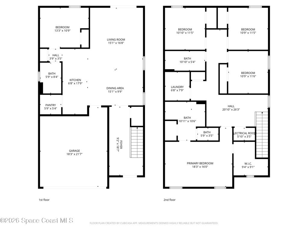
2,466 Total SqFt.
Beds: 5
2,466 Living SqFt.
Baths: 3.00
Year Built: 2023
This property is Active. Please contact us for similar properties.
Property Description:
Located in the Harvest Landing community in Rockledge, this 5-bedroom, 3-bathroom home offers over 2,400 sq ft of newer construction with a layout that just works. The main living areas feel open but practical, with a full bedroom and bathroom downstairs for added flexibility. While only a couple years old, the home already features solid updates including high-traffic laminate flooring, updated landscaping front and back, gutters, Trimlight exterior LED lighting, a Brita whole home filtration and softener system, UV HVAC, and Ring cameras that convey. Out back, enjoy a fully fenced yard with a 6-foot privacy fence, two storage sheds, and a screened patio that connects indoor and outdoor living. Harvest Landing offers a community pool, playground, and walking paths that bring the neighborhood together. Flood maps may show AE, but updated determination places the home in Zone X, no flood insurance required.So, what are you waiting for?
Property Listing Details for 1264 Gordon Avenue, Rockledge, FL 32955
Exterior Features
Interior Features
Ceiling Fan(s) , Kitchen Island
Equipment / Appliances
Dishwasher , Disposal , Dryer , Electric Range , Electric Water Heater , Microwave , Refrigerator , Washer , Water Softener Owned
Pool
Pool Description
Utilities
Cable Available , Electricity Connected , Sewer Connected , Water Connected
Additional Rooms
None
Waterfront
No
Parking
Garage
Split Floorplan
HOA
HOA Dues
0.00
Construction
Block , Concrete , Stucco
Floor
Laminate , Tile
Exterior Finish
Roof Type
Shingle
Fireplace
0
County
Brevard
Gated Community
Furnishings
Negotiable
Home Warranty
Tax Year
2025
Tax Amount
5162.95
55+ Community
Subdivision
Listing Status
Active
Property Status
Home Style
Home View
Street
1264 Gordon Avenue, Rockledge, 32955
Zip Code
D. Basile Real Estate, LLC lists and sells Real Estate and Luxury homes in Melbourne Beach, Merritt Island, Cocoa Beach, Lansing Island, Tortoise Island, Barefoot Bay, Cape Canaveral, Cocoa, Grant Valkaria, Indialantic, Indian Harbour Beach, Malabar, Melbourne, Palm Bay, Rockledge, Satellite Beach, Titusville, West Melbourne and surrounding areas in Brevard.
This listing is courtesy of Real Broker LLC. Property Listing Data contained within the D Basile Real Estate website is the property of Brevard MLS and is provided for consumers looking to purchase real estate. Any other use is prohibited. We are not responsible for errors and omissions on this web site. All information contained herein should be deemed reliable but not guaranteed, all representations are approximate, and individual verification is recommended.
Quick MLS Search
Choose the Area, City, then Type of the property you're looking for

Share us on your network!