Listing Address:
4194 Fenrose Circle, Melbourne, FL 32940
Price: $725,000
MLS # 1072500
Property Type: Residential
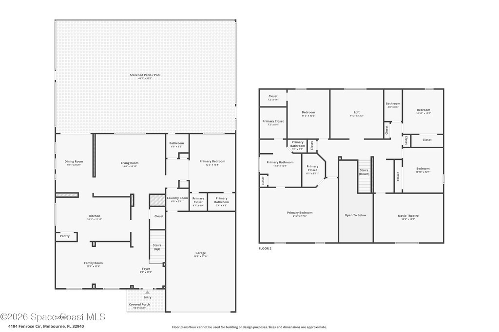
3,658 Total SqFt.
Beds: 5
3,658 Living SqFt.
Baths: 4.00 ½ Baths: 1
Year Built: 2003
This property is Active. Please contact us for similar properties.
Property Description:
Set on a peaceful lakefront lot, this thoughtfully designed home offers a rare blend of privacy, functionality, and comfort in a highly desirable location. The flexible layout features dual primary suites--one downstairs and one upstairs--ideal for multigenerational living or added convenience. Enjoy serene water views from the screened pool area, creating the perfect backdrop for relaxing or entertaining. Extensive updates provide peace of mind, including a new roof (2020), tankless water heater (2019), upstairs HVAC (2019), pool pump/filtration system (2018), and kitchen appliances (2019). Additional upgrades include a refinished pool deck (2021), exterior treatments (2021/2022), fence (2023), and pool enclosure treatment (2026). A dedicated home theater adds to the lifestyle appeal. A truly functional home in a tranquil setting.Do not miss this opportunity to own one of the best lot locations in the entire area!
Property Listing Details for 4194 Fenrose Circle, Melbourne, FL 32940
Exterior Features
Interior Features
Guest Suite , His and Hers Closets , In-Law Floorplan , Kitchen Island , Open Floorplan , Primary Bathroom -Tub with Separate Shower , Split Bedrooms , Walk-In Closet(s)
Equipment / Appliances
Dishwasher , Electric Oven , Microwave , Refrigerator
Pool
Pool Description
In Ground
Utilities
Electricity Connected , Sewer Connected , Water Connected
Additional Rooms
None
Waterfront
Yes
Water Type
Parking
Garage , Garage Door Opener
Split Floorplan
HOA
HOA Dues
0.00
Construction
Concrete , Frame , Stucco
Floor
Tile , Vinyl
Exterior Finish
Roof Type
Shingle
Fireplace
0
County
Brevard
Gated Community
Furnishings
Unfurnished
Home Warranty
Tax Year
2025
Tax Amount
5402.17
55+ Community
Subdivision
Listing Status
Active
Property Status
Home Style
Home View
Pond , Pool , Trees/Woods
Street
4194 Fenrose Circle, Melbourne, 32940
Zip Code
D. Basile Real Estate, LLC lists and sells Real Estate and Luxury homes in Melbourne Beach, Merritt Island, Cocoa Beach, Lansing Island, Tortoise Island, Barefoot Bay, Cape Canaveral, Cocoa, Grant Valkaria, Indialantic, Indian Harbour Beach, Malabar, Melbourne, Palm Bay, Rockledge, Satellite Beach, Titusville, West Melbourne and surrounding areas in Brevard.
This listing is courtesy of One Sotheby's International. Property Listing Data contained within the D Basile Real Estate website is the property of Brevard MLS and is provided for consumers looking to purchase real estate. Any other use is prohibited. We are not responsible for errors and omissions on this web site. All information contained herein should be deemed reliable but not guaranteed, all representations are approximate, and individual verification is recommended.
Quick MLS Search
Choose the Area, City, then Type of the property you're looking for

Share us on your network!