Listing Address:
506 Siena Court, Satellite Beach, FL 32937
Price: $3,200
MLS # 1071302
Property Type: Rental
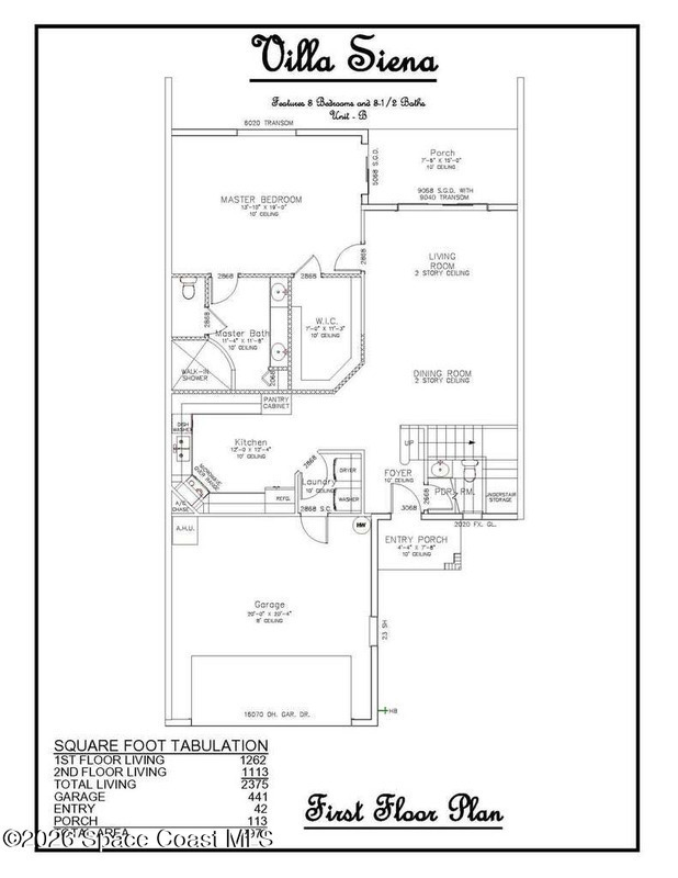
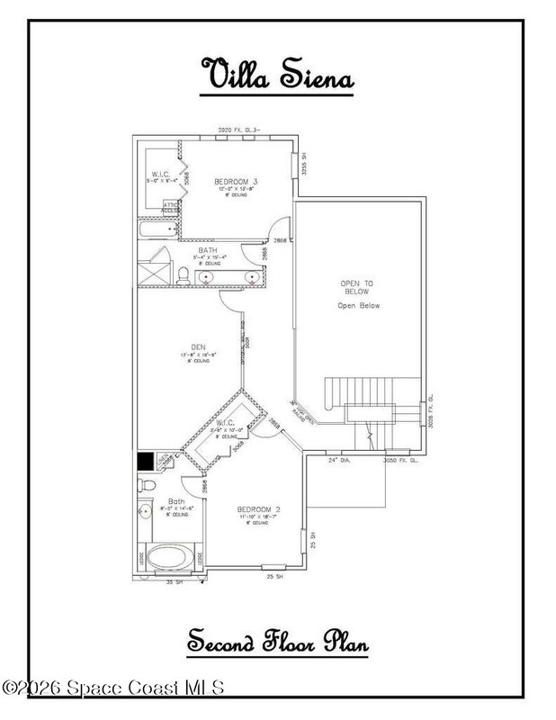
2,235 Total SqFt.
Beds: 3
2,235 Living SqFt.
Baths: 4.00 ½ Baths: 1
Lot Description:
This property is Active. Please contact us for similar properties.
Property Description:
Rare beach-side rental opportunity! Beautiful Builders Model with over 2200 sq ft. of living area. With Room for the whole Family, this luxury town home villa, only 6 years old, offers soaring cathedral ceilings and an open, light-filled floor plan. High-end finishes include granite mosaic tile and backsplashes in the kitchen and baths, 42'' wood cabinets, ceramic tile throughout living and wet areas, and a 3-panel sliding glass door leading to the private lanai. Upstairs features a spacious loft and bedrooms with large walk-in closets. Built with solid concrete block construction and high-efficiency Low-E impact windows for added comfort and peace of mind. HOA includes lawn maintenance and access to the community pool. Conveniently located within walking/biking distance to local schools Holland Elementary, Delaura Middle and Satellite High school, a 7-minute bike ride to the beach, and close to Patrick Space Force Base and I-95 for an easy commute.
Property Listing Details for 506 Siena Court, Satellite Beach, FL 32937
Exterior Features
Impact Windows
Interior Features
Equipment / Appliances
Dishwasher , Electric Range , Electric Water Heater , Microwave , Refrigerator
Pool
Pool Description
Utilities
Additional Rooms
None
Waterfront
No
Parking
Split Floorplan
HOA
HOA Dues
0.00
Construction
Floor
Exterior Finish
Roof Type
Fireplace
0
County
Brevard
Gated Community
Furnishings
Unfurnished
Home Warranty
Tax Year
0
Tax Amount
0.00
55+ Community
Subdivision
Listing Status
Active
Property Status
Home Style
Home View
Street
506 Siena Court, Satellite Beach, 32937
Zip Code
D. Basile Real Estate, LLC lists and sells Real Estate and Luxury homes in Melbourne Beach, Merritt Island, Cocoa Beach, Lansing Island, Tortoise Island, Barefoot Bay, Cape Canaveral, Cocoa, Grant Valkaria, Indialantic, Indian Harbour Beach, Malabar, Melbourne, Palm Bay, Rockledge, Satellite Beach, Titusville, West Melbourne and surrounding areas in Brevard.
This listing is courtesy of Florida Homes Rlty. & Mtg. LLC. Property Listing Data contained within the D Basile Real Estate website is the property of Brevard MLS and is provided for consumers looking to purchase real estate. Any other use is prohibited. We are not responsible for errors and omissions on this web site. All information contained herein should be deemed reliable but not guaranteed, all representations are approximate, and individual verification is recommended.
Quick MLS Search
Choose the Area, City, then Type of the property you're looking for

Share us on your network!