Listing Address:
225 Strand Drive, Melbourne Beach, FL 32951
Price: $899,000
MLS # 1070624
Property Type: Residential
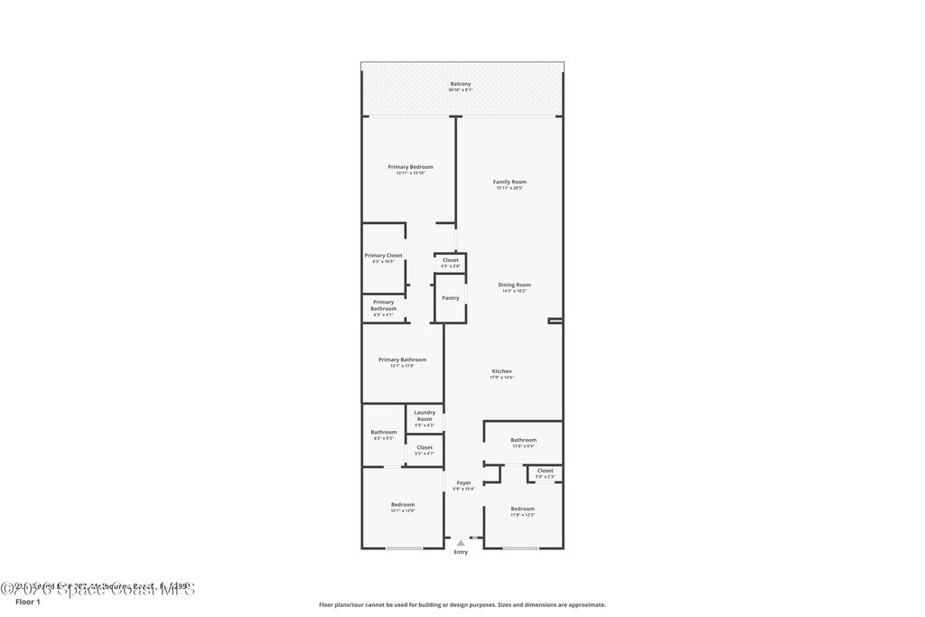
2,047 Total SqFt.
Beds: 3
2,047 Living SqFt.
Baths: 3.00
Year Built: 2023
This property is Active. Please contact us for similar properties.
Property Description:
Gated luxury. Resort-style living. Short-term rental flexibility.Located in Harbor Island Beach Club, this 2023-built DIRECT riverfront condo offers over 2,000 sq. ft. of living space and solid concrete construction. Positioned on the third floor, it features soaring ceilings, an open-concept layout, and dramatic floor-to-ceiling river views with stunning sunsets. The split floor plan includes three spacious bedrooms, each with its own en suite, including a riverfront primary suite with floor-to-ceiling glass, walk-in shower, and custom closets. Electric blinds provide comfort and storm protection throughout. The gourmet kitchen flows into expansive living and dining areas and out to a large balcony overlooking the water. Enjoy resort-style amenities including a gated entrance, riverside pool with cabanas, marina access, water sports rentals and private beach access just a short walk away. Flexible rental options provide owners with unmatched freedom!
Property Listing Details for 225 Strand Drive, Melbourne Beach, FL 32951
Exterior Features
Balcony , Dock , Impact Windows , Outdoor Shower
Interior Features
Breakfast Bar , Built-in Features , Ceiling Fan(s) , Eat-in Kitchen , Entrance Foyer , Guest Suite , His and Hers Closets , Kitchen Island , Open Floorplan , Primary Bathroom - Tub with Shower , Primary Bathroom -Tub with Separate Shower , Primary Downstairs , Smart Home , Split Bedrooms , Walk-In Closet(s)
Equipment / Appliances
Convection Oven , Dishwasher , Disposal , Dryer , Electric Cooktop , Electric Oven , Electric Range , Electric Water Heater , ENERGY STAR Qualified Dishwasher , ENERGY STAR Qualified Dryer , ENERGY STAR Qualified Refrigerator , ENERGY STAR Qualified Washer , ENERGY STAR Qualified Water Heater , Microwave , Refrigerator , Washer , Wine Cooler
Pool
Pool Description
Utilities
Cable Available , Cable Connected , Electricity Connected , Sewer Available , Sewer Connected , Water Available , Water Connected
Additional Rooms
None
Waterfront
Yes
Water Type
Parking
Additional Parking , Assigned , Garage , Guest , Underground
Split Floorplan
HOA
HOA Dues
0.00
Construction
Block , Concrete
Floor
Tile
Exterior Finish
Roof Type
Membrane
Fireplace
0
County
Brevard
Gated Community
Furnishings
Unfurnished
Home Warranty
Tax Year
2025
Tax Amount
10279.20
55+ Community
Subdivision
Listing Status
Active
Property Status
Home Style
Contemporary
Home View
River
Street
225 Strand Drive, Melbourne Beach, 32951
Zip Code
D. Basile Real Estate, LLC lists and sells Real Estate and Luxury homes in Melbourne Beach, Merritt Island, Cocoa Beach, Lansing Island, Tortoise Island, Barefoot Bay, Cape Canaveral, Cocoa, Grant Valkaria, Indialantic, Indian Harbour Beach, Malabar, Melbourne, Palm Bay, Rockledge, Satellite Beach, Titusville, West Melbourne and surrounding areas in Brevard.
This listing is courtesy of Blue Marlin Real Estate. Property Listing Data contained within the D Basile Real Estate website is the property of Brevard MLS and is provided for consumers looking to purchase real estate. Any other use is prohibited. We are not responsible for errors and omissions on this web site. All information contained herein should be deemed reliable but not guaranteed, all representations are approximate, and individual verification is recommended.
Quick MLS Search
Choose the Area, City, then Type of the property you're looking for

Share us on your network!