Listing Address:
1405 Pine Street, Melbourne, FL 32901
Price: $695,000
MLS # 1068951
Property Type: Commercial
This property is Active. Please contact us for similar properties.
Property Description:
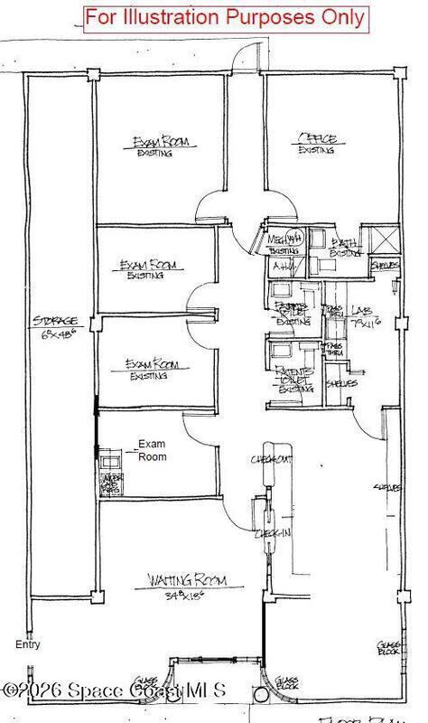
Excellent opportunity to purchase a 2,004 SF stand-alone medical office within walking distance of Health First Holmes Regional Medical Center! Interior includes a waiting room, check-in/out, lab, 4 plumbed exam rooms and a doctor's office. There are 3 total restrooms (1 with shower + 2 with passthrough windows to lab). Carpet and LVP flooring. Drop ceiling throughout. There are 10 asphalt paved/striped parking spaces. Recent improvements include Roof 2025, Hot Water Heater 2024, Electric Panel 2023, and HVAC 2022. Downtown Melbourne, the Melbourne Square Mall and the Melbourne International Airport are a short drive away. Lots of shopping, dining, schools and employers nearby. Make this the future home for your business today!
Property Listing Details for 1405 Pine Street, Melbourne, FL 32901
Subdivision
Total SqFt.
2,004
Property Sub-Type
Office
Sale / Lease
Sale
Lot Acres
0.28
County
Brevard
Tax Amount
$6,691 (2025)
D. Basile Real Estate, LLC lists and sells Real Estate and Luxury homes in Melbourne Beach, Merritt Island, Cocoa Beach, Lansing Island, Tortoise Island, Barefoot Bay, Cape Canaveral, Cocoa, Grant Valkaria, Indialantic, Indian Harbour Beach, Malabar, Melbourne, Palm Bay, Rockledge, Satellite Beach, Titusville, West Melbourne and surrounding areas in Brevard.
This listing is courtesy of The Ullian Realty Corporation. Property Listing Data contained within the D Basile Real Estate website is the property of Brevard MLS and is provided for consumers looking to purchase real estate. Any other use is prohibited. We are not responsible for errors and omissions on this web site. All information contained herein should be deemed reliable but not guaranteed, all representations are approximate, and individual verification is recommended.
Quick MLS Search
Choose the Area, City, then Type of the property you're looking for

Share us on your network!