Listing Address:
142 N Orlando Avenue, Cocoa Beach, FL 32931
Price: $3,515
MLS # 1068638
Property Type: Commercial
This property is Active. Please contact us for similar properties.
Property Description:
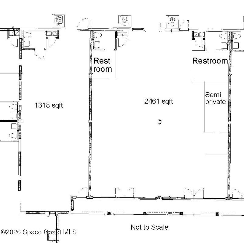
A1A Frontage - Professional Retail/Office Space for Lease. Interior unit located in Las Galerias Plaza with exceptional A1A visibility and high traffic count. White shell, open space with semi-private office/workspace. Suites 500 and 600 are currently combined into one large, mostly open area. 2 separate restroom areas: one on suite 500 side (2 urinals & private toilet) and the other on suite 600 side (3 private toilets). If more space is needed, Suite 400 could be added with a long term lease. Positioned in a high-demand commercial area surrounded by well-established businesses and nestled among residential neighborhoods and condominiums. Benefits include ample parking, a large illuminated monument sign directly on A1A, and close proximity to Mainstreet Cocoa Beach, the causeways and beaches. An ideal location for professional services and retail businesses seeking visibility, convenience, and a thriving business environment.
Property Listing Details for 142 N Orlando Avenue, Cocoa Beach, FL 32931
Total SqFt.
9,720
Property Sub-Type
Retail
Sale / Lease
Lease
Lot Acres
0.62
County
Brevard
Tax Amount
$19,177 (2023)
Zoning
Commercial
D. Basile Real Estate, LLC lists and sells Real Estate and Luxury homes in Melbourne Beach, Merritt Island, Cocoa Beach, Lansing Island, Tortoise Island, Barefoot Bay, Cape Canaveral, Cocoa, Grant Valkaria, Indialantic, Indian Harbour Beach, Malabar, Melbourne, Palm Bay, Rockledge, Satellite Beach, Titusville, West Melbourne and surrounding areas in Brevard.
This listing is courtesy of Drop Anchor Realty LLC. Property Listing Data contained within the D Basile Real Estate website is the property of Brevard MLS and is provided for consumers looking to purchase real estate. Any other use is prohibited. We are not responsible for errors and omissions on this web site. All information contained herein should be deemed reliable but not guaranteed, all representations are approximate, and individual verification is recommended.
Quick MLS Search
Choose the Area, City, then Type of the property you're looking for

Share us on your network!