Listing Address:
1267 Rockledge Boulevard, Rockledge, FL 32955
Price: $1,975
MLS # 1068616
Property Type: Commercial
This property is Closed. Please contact us for similar properties.
Property Description:
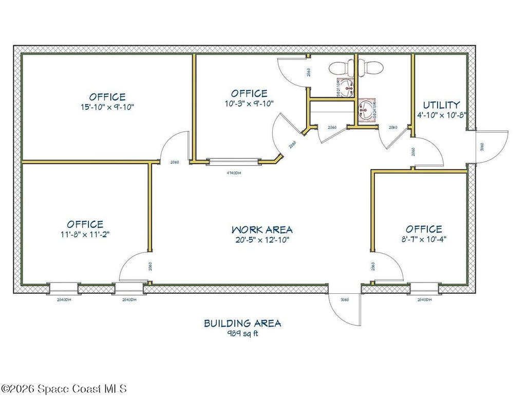
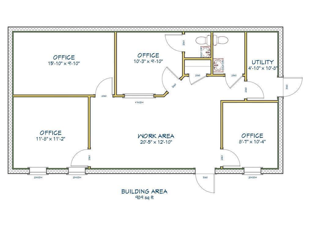
Standalone Office - Prime US-1 Frontage, Recently updated and ready for move-in, this freestanding office building offers excellent visibility on US-1. The versatile floor plan currently features three spacious private offices, two restrooms, and a welcoming reception area. The front layout can easily be restored to include a fourth private office if needed. Rent: $1,975/month (Includes lawn maintenance); Utilities: Tenant responsible for electric and water; Parking: 7 dedicated spaces. See floor plan in the Document Tab.
3/30/2026
Sold Price: $1,975
Property Listing Details for 1267 Rockledge Boulevard, Rockledge, FL 32955
County
Brevard
Tax Amount
$0 (0)
D. Basile Real Estate, LLC lists and sells Real Estate and Luxury homes in Melbourne Beach, Merritt Island, Cocoa Beach, Lansing Island, Tortoise Island, Barefoot Bay, Cape Canaveral, Cocoa, Grant Valkaria, Indialantic, Indian Harbour Beach, Malabar, Melbourne, Palm Bay, Rockledge, Satellite Beach, Titusville, West Melbourne and surrounding areas in Brevard.
This listing is courtesy of Rahal Real Estate LLC. Property Listing Data contained within the D Basile Real Estate website is the property of Brevard MLS and is provided for consumers looking to purchase real estate. Any other use is prohibited. We are not responsible for errors and omissions on this web site. All information contained herein should be deemed reliable but not guaranteed, all representations are approximate, and individual verification is recommended.
Quick MLS Search
Choose the Area, City, then Type of the property you're looking for

Share us on your network!