Listing Address:
2953 S Highway A1a , Melbourne Beach, FL 32951
Price: $690,000
MLS # 1068472
Property Type: Residential
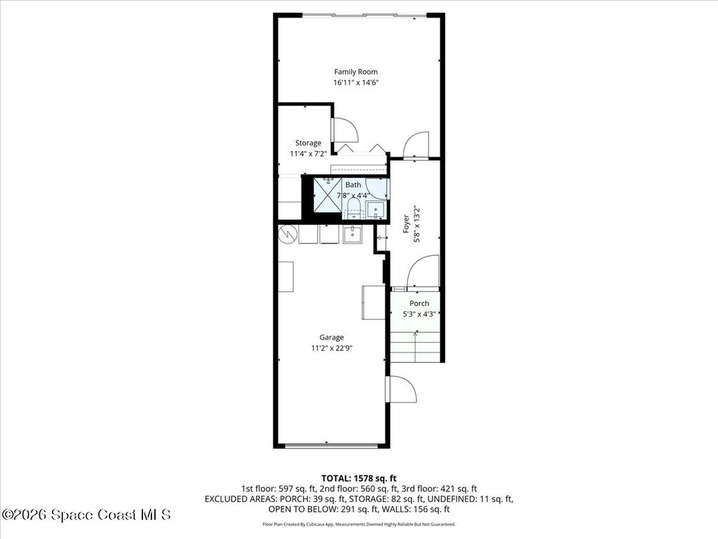
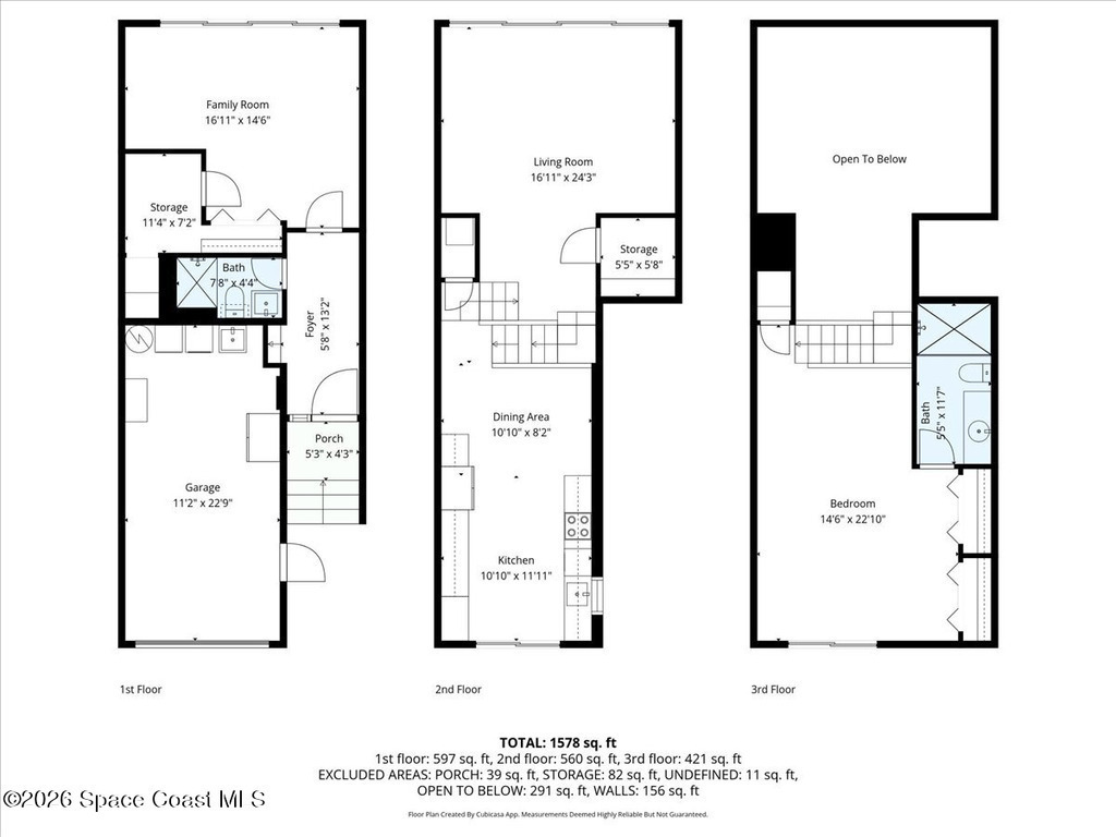
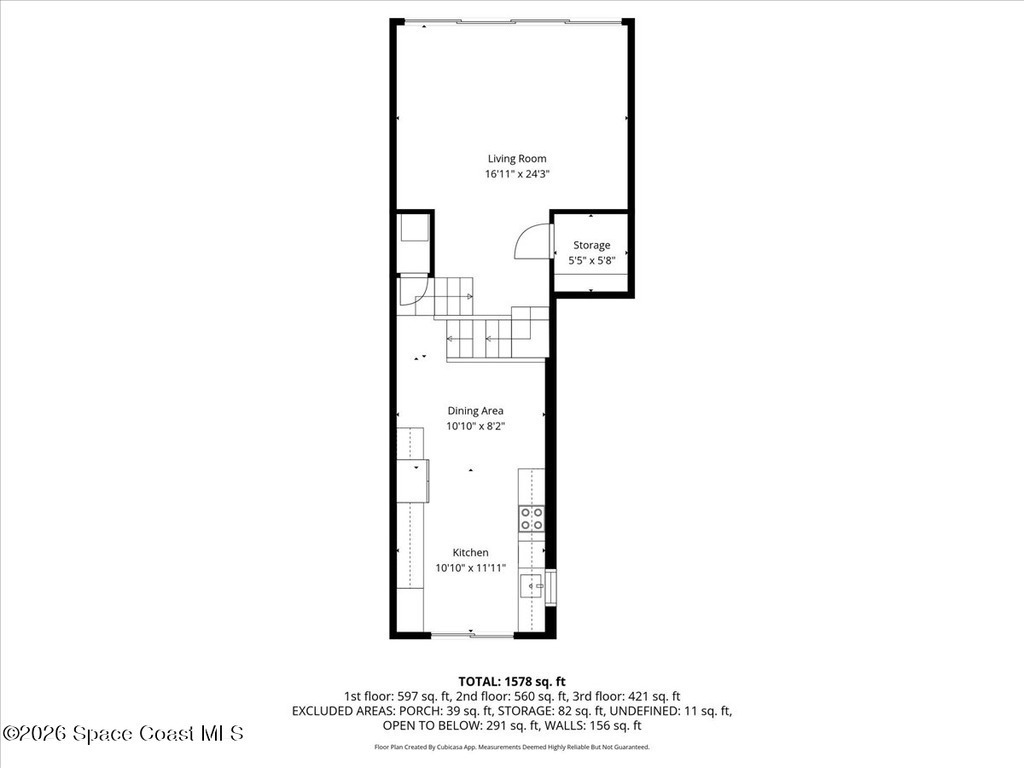
1,600 Total SqFt.
Beds: 2
1,600 Living SqFt.
Baths: 2.00
Year Built: 1978
This property is Active. Please contact us for similar properties.
Property Description:
Completely remodeled oceanfront townhome-style retreat in the heart of Melbourne Beach, offering sweeping Atlantic views and an exceptional coastal setting. Located within one of the few true oceanfront communities along the Space Coast that allows short-term rentals, this property presents a compelling opportunity for both refined personal use and income potential. Renovated in 2024 with a new kitchen featuring soft-close KraftMaid cabinetry, expansive pantry, stainless steel appliances, new flooring, updated bathrooms, lighting, fans, and window treatments throughout. Major upgrades include a new HVAC system (2023), updated electrical panel, wiring for a whole-house generator, and electric vehicle charging capability. The first-floor bedroom and bath open directly to the beach, while the primary suite offers dual closets and a beautifully updated bath. Community features newer tile roofs and rebuilt beach crossovers. A rare blend of oceanfront lifestyle and turnkey condition.
Property Listing Details for 2953 S Highway A1a , Melbourne Beach, FL 32951
Exterior Features
Balcony
Interior Features
Ceiling Fan(s) , Guest Suite , His and Hers Closets , Open Floorplan , Primary Bathroom - Tub with Shower , Primary Downstairs , Split Bedrooms , Vaulted Ceiling(s)
Equipment / Appliances
Dishwasher , Electric Range , Electric Water Heater , Microwave , Refrigerator
Pool
Pool Description
Utilities
Cable Connected , Electricity Connected , Sewer Connected , Water Connected
Additional Rooms
None
Waterfront
Yes
Parking
Attached , Garage , Guest
Split Floorplan
HOA
HOA Dues
0.00
Construction
Block , Concrete , Stucco
Floor
Carpet , Laminate , Wood
Exterior Finish
Roof Type
Tile
Fireplace
0
County
Brevard
Gated Community
Furnishings
Unfurnished
Home Warranty
Tax Year
2025
Tax Amount
7337.12
55+ Community
Subdivision
Listing Status
Active
Property Status
Home Style
Home View
Beach , Ocean , Water
Street
2953 S Highway A1a , Melbourne Beach, 32951
Zip Code
D. Basile Real Estate, LLC lists and sells Real Estate and Luxury homes in Melbourne Beach, Merritt Island, Cocoa Beach, Lansing Island, Tortoise Island, Barefoot Bay, Cape Canaveral, Cocoa, Grant Valkaria, Indialantic, Indian Harbour Beach, Malabar, Melbourne, Palm Bay, Rockledge, Satellite Beach, Titusville, West Melbourne and surrounding areas in Brevard.
This listing is courtesy of One Sotheby's International. Property Listing Data contained within the D Basile Real Estate website is the property of Brevard MLS and is provided for consumers looking to purchase real estate. Any other use is prohibited. We are not responsible for errors and omissions on this web site. All information contained herein should be deemed reliable but not guaranteed, all representations are approximate, and individual verification is recommended.
Quick MLS Search
Choose the Area, City, then Type of the property you're looking for

Share us on your network!