Listing Address:
3400 Ocean Beach Boulevard, Cocoa Beach, FL 32931
Price: $550,000
MLS # 1067520
Property Type: Residential
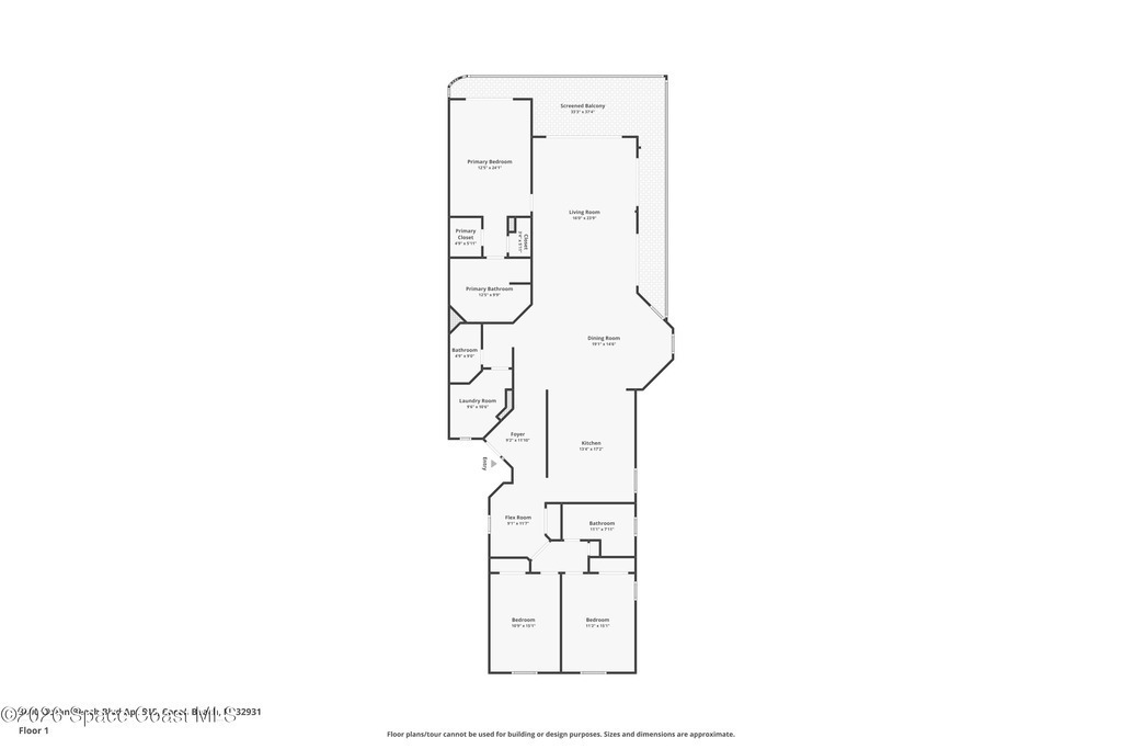
2,376 Total SqFt.
Beds: 3
2,376 Living SqFt.
Baths: 3.00 ½ Baths: 1
Year Built: 1992
This property is Closed. Please contact us for similar properties.
Property Description:
Very spacious 5TH-FLOOR, SW-FACING END-UNIT CONDO located in the highly sought-after, gated Emerald Seas community on Ocean Beach Blvd. This gorgeous, updated residence offers relaxing ocean views, abundant natural light, and a desirable split floor plan that lives comfortably like a home. Enjoy a wraparound balcony with southern exposure showcasing miles of coastline, stunning sunrises and sunsets, and unforgettable rocket launches. The spacious kitchen features wood cabinetry and granite countertops, complemented by oversized bathrooms and a dedicated office area. This well-maintained oceanfront complex delivers true resort-style living just steps from popular restaurants, bars, Publix, and more. Amenities include a heated pool and spa, private beach access, sauna, fitness center, tennis courts, and NEW pickleball courts. Deeded under-building parking with private entrance and large storage area is perfect for beach gear. MILESTONE/SIRS COMPLETE & UP TO DATE.
3/05/2026
Sold Price: $555,000
Property Listing Details for 3400 Ocean Beach Boulevard, Cocoa Beach, FL 32931
Exterior Features
Balcony
Interior Features
Breakfast Bar , Built-in Features , Ceiling Fan(s) , Eat-in Kitchen , His and Hers Closets , Kitchen Island , Open Floorplan , Primary Bathroom -Tub with Separate Shower , Split Bedrooms , Walk-In Closet(s)
Equipment / Appliances
Dishwasher , Disposal , Dryer , Microwave , Refrigerator , Washer
Pool
Pool Description
Heated , In Ground
Utilities
Cable Available , Electricity Connected , Sewer Connected , Water Connected
Additional Rooms
None
Waterfront
Yes
Water Type
Parking
Underground
Split Floorplan
HOA
HOA Dues
0.00
Construction
Concrete
Floor
Carpet , Laminate , Tile
Exterior Finish
Roof Type
Fireplace
0
County
Brevard
Gated Community
Furnishings
Partially
Home Warranty
Tax Year
2025
Tax Amount
5337.33
55+ Community
Subdivision
Listing Status
Closed
Property Status
Home Style
Home View
Beach , Ocean , Water
Street
3400 Ocean Beach Boulevard, Cocoa Beach, 32931
Zip Code
D. Basile Real Estate, LLC lists and sells Real Estate and Luxury homes in Melbourne Beach, Merritt Island, Cocoa Beach, Lansing Island, Tortoise Island, Barefoot Bay, Cape Canaveral, Cocoa, Grant Valkaria, Indialantic, Indian Harbour Beach, Malabar, Melbourne, Palm Bay, Rockledge, Satellite Beach, Titusville, West Melbourne and surrounding areas in Brevard.
This listing is courtesy of Compass Florida , LLC. Property Listing Data contained within the D Basile Real Estate website is the property of Brevard MLS and is provided for consumers looking to purchase real estate. Any other use is prohibited. We are not responsible for errors and omissions on this web site. All information contained herein should be deemed reliable but not guaranteed, all representations are approximate, and individual verification is recommended.
Quick MLS Search
Choose the Area, City, then Type of the property you're looking for

Share us on your network!