Listing Address:
7370 Turkey Point Drive, Titusville, FL 32780
Price: $785,453
MLS # 1067135
Property Type: Residential
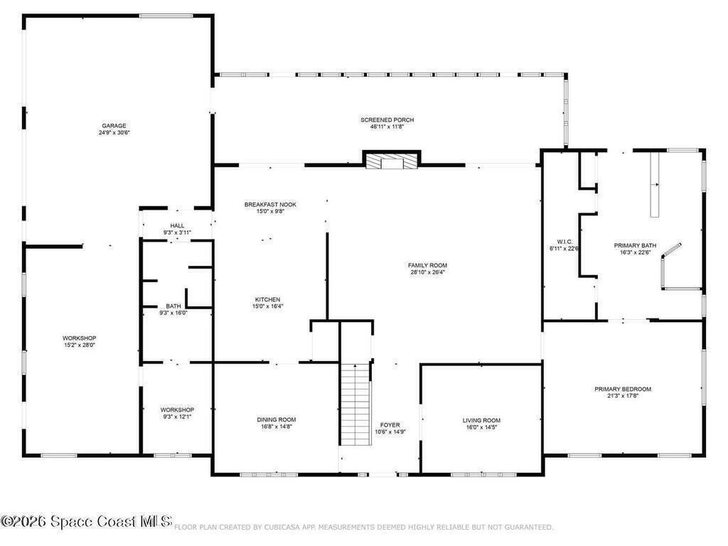
5,253 Total SqFt.
Beds: 5
5,253 Living SqFt.
Baths: 4.00
Year Built: 1990
This property is Active. Please contact us for similar properties.
Property Description:
This SPACIOUS ESTATE HOME in desirable Windover Farms in South Titusville sits on a 1.19-acre wooded corner lot. With over 5,000 SF, this 5 bed / 4 bath home offers peaceful, private living surrounded by nature and adjacent to a wildlife preserve. Enjoy dual verandas, expansive indoor/outdoor living, and flexible multi-generational space. The kitchen features a large center island, gas range, full-size freezer and fridge, and abundant cabinetry. The enclosed Florida Room spans the west side of the home. There is always plenty of hot water for bathing and cooking with twin Lochinvar Industrial Propane fired water heaters. The Oriented Strand Bamboo plank flooring is cushioned and sound dampened with a QuietWalk Acoustical and Vapor underlayment for soft, quiet walking on both the upper and the lower floors. Includes RV/boat parking, workshop, generator, and easy access to Orlando, KSC, and more.
Property Listing Details for 7370 Turkey Point Drive, Titusville, FL 32780
Exterior Features
Balcony , Storm Shutters
Interior Features
Ceiling Fan(s) , Entrance Foyer , Jack and Jill Bath , Primary Bathroom -Tub with Separate Shower , Primary Downstairs , Vaulted Ceiling(s)
Equipment / Appliances
Dishwasher , Gas Range , Microwave , Refrigerator
Pool
Pool Description
Utilities
Cable Available , Electricity Connected , Propane , Water Connected
Additional Rooms
None
Waterfront
No
Parking
Garage , RV Access/Parking
Split Floorplan
HOA
HOA Dues
0.00
Construction
Frame , Stucco
Floor
Laminate , Tile , Wood
Exterior Finish
Roof Type
Metal
Fireplace
0
County
Brevard
Gated Community
Furnishings
Unfurnished
Home Warranty
Tax Year
2025
Tax Amount
4286.61
55+ Community
Subdivision
Listing Status
Active
Property Status
Home Style
Contemporary
Home View
Trees/Woods
Street
7370 Turkey Point Drive, Titusville, 32780
Zip Code
D. Basile Real Estate, LLC lists and sells Real Estate and Luxury homes in Melbourne Beach, Merritt Island, Cocoa Beach, Lansing Island, Tortoise Island, Barefoot Bay, Cape Canaveral, Cocoa, Grant Valkaria, Indialantic, Indian Harbour Beach, Malabar, Melbourne, Palm Bay, Rockledge, Satellite Beach, Titusville, West Melbourne and surrounding areas in Brevard.
This listing is courtesy of Keller Williams Space Coast. Property Listing Data contained within the D Basile Real Estate website is the property of Brevard MLS and is provided for consumers looking to purchase real estate. Any other use is prohibited. We are not responsible for errors and omissions on this web site. All information contained herein should be deemed reliable but not guaranteed, all representations are approximate, and individual verification is recommended.
Quick MLS Search
Choose the Area, City, then Type of the property you're looking for

Share us on your network!