Listing Address:
400 Barton Boulevard, Rockledge, FL 32955
Price: $1,000
MLS # 1066319
Property Type: Commercial
This property is Active. Please contact us for similar properties.
Property Description:
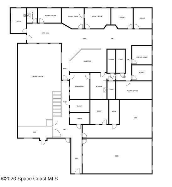
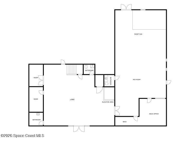
One 1,000 SF Office Space Left. Well-positioned mixed-use property offering excellent flexibility for a wide range of users. The site features a strong combination of small office, retail, and warehouse spaces, making it ideal for owner-users, investors, or businesses seeking multiple functional components in one location. Convenient access, adaptable layouts, and diverse use potential support professional services, light industrial, showroom, storage, and creative business concepts. A rare opportunity to secure versatile space that can accommodate growth, multiple tenants, or mixed-use operations.
Property Listing Details for 400 Barton Boulevard, Rockledge, FL 32955
Total SqFt.
15,145
Property Sub-Type
Office
Sale / Lease
Lease
Lot Acres
0.69
County
Brevard
Tax Amount
$11,601 (2025)
D. Basile Real Estate, LLC lists and sells Real Estate and Luxury homes in Melbourne Beach, Merritt Island, Cocoa Beach, Lansing Island, Tortoise Island, Barefoot Bay, Cape Canaveral, Cocoa, Grant Valkaria, Indialantic, Indian Harbour Beach, Malabar, Melbourne, Palm Bay, Rockledge, Satellite Beach, Titusville, West Melbourne and surrounding areas in Brevard.
This listing is courtesy of JM Real Estate. Property Listing Data contained within the D Basile Real Estate website is the property of Brevard MLS and is provided for consumers looking to purchase real estate. Any other use is prohibited. We are not responsible for errors and omissions on this web site. All information contained herein should be deemed reliable but not guaranteed, all representations are approximate, and individual verification is recommended.
Quick MLS Search
Choose the Area, City, then Type of the property you're looking for

Share us on your network!