Listing Address:
368 Ocean Spray Avenue, Satellite Beach, FL 32937
Price: $530,000
MLS # 1066090
Property Type: Residential
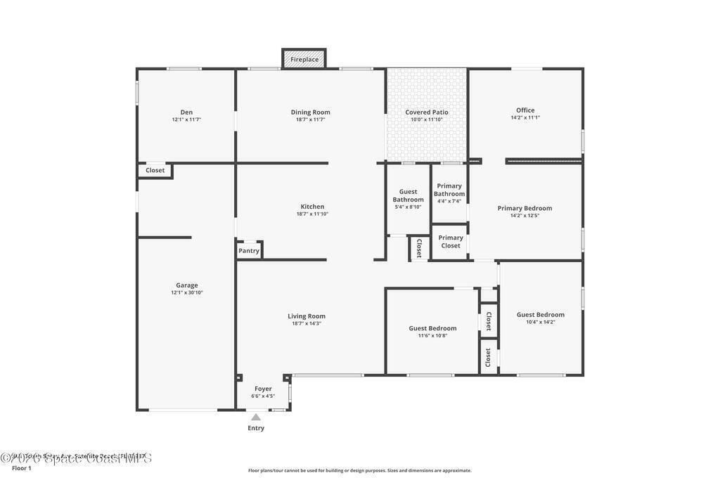
1,780 Total SqFt.
Beds: 4
1,780 Living SqFt.
Baths: 2.00
Year Built: 1961
This property is Closed. Please contact us for similar properties.
Property Description:
Welcome to this 4-bedroom beachside home, where smart design & coastal living come together seamlessly. An enclosed front foyer creates a welcoming entry & sets the tone for a layout that maximizes space & functionality throughout. Fresh interior & exterior paint give the home a crisp, move-in-ready feel, while tile flooring runs throughout, ideal for easy upkeep in a beachside setting. Step outside to a true tropical backyard oasis, perfect for relaxing or entertaining. The inground pool is complemented by a separate pool bar area, creating a resort-style atmosphere right at home. A baby gate for the pool adds an extra layer of safety & peace of mind. The primary suite offers added flexibility with an extra room that can serve as a home office, nursery, or private retreat. Ample storage throughout the home keeps everything organized & the deep garage with extra shelving provides plenty of room for beach gear, tools & more. Perfect as a full-time residence, vacation home or investment
3/06/2026
Sold Price: $515,000
Property Listing Details for 368 Ocean Spray Avenue, Satellite Beach, FL 32937
Exterior Features
Interior Features
Equipment / Appliances
Dishwasher , Electric Range , Microwave , Refrigerator
Pool
Pool Description
In Ground
Utilities
Electricity Connected , Sewer Connected
Additional Rooms
None
Waterfront
No
Parking
Attached , Garage
Split Floorplan
HOA
HOA Dues
0.00
Construction
Concrete , Stucco
Floor
Exterior Finish
Roof Type
Shingle
Fireplace
0
County
Brevard
Gated Community
Furnishings
Unfurnished
Home Warranty
Tax Year
2025
Tax Amount
6992.27
55+ Community
Subdivision
Listing Status
Closed
Property Status
Home Style
Home View
Street
368 Ocean Spray Avenue, Satellite Beach, 32937
Zip Code
D. Basile Real Estate, LLC lists and sells Real Estate and Luxury homes in Melbourne Beach, Merritt Island, Cocoa Beach, Lansing Island, Tortoise Island, Barefoot Bay, Cape Canaveral, Cocoa, Grant Valkaria, Indialantic, Indian Harbour Beach, Malabar, Melbourne, Palm Bay, Rockledge, Satellite Beach, Titusville, West Melbourne and surrounding areas in Brevard.
This listing is courtesy of RE/MAX Aerospace Realty. Property Listing Data contained within the D Basile Real Estate website is the property of Brevard MLS and is provided for consumers looking to purchase real estate. Any other use is prohibited. We are not responsible for errors and omissions on this web site. All information contained herein should be deemed reliable but not guaranteed, all representations are approximate, and individual verification is recommended.
Quick MLS Search
Choose the Area, City, then Type of the property you're looking for

Share us on your network!