Listing Address:
7185 S Highway A1a , Melbourne Beach, FL 32951
Price: $1,725,000
MLS # 1064288
Property Type: Residential
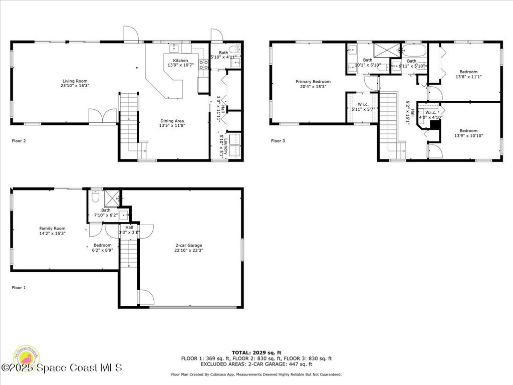
2,112 Total SqFt.
Beds: 4
2,112 Living SqFt.
Baths: 4.00 ½ Baths: 1
Year Built: 1991
This property is Closed. Please contact us for similar properties.
Property Description:
GREAT DEAL ALERT !! on this updated, direct oceanfront home along some of the most beautiful stretch of beaches on Florida's East Coast! Spectacular ocean views from kitchen, main living area, primary suite & 2nd bedroom, expansive covered deck and private beach crossover. Built on pilings on a large lot, nearly 20' above sea level w/ a very healthy dune creates the likely opportunity to add your own custom pool. A new AC (4/24), newer metal roof and impact rated windows/ doors (both 2020) and reverse osmosis water supply for the entire home all add significant value to this Oceanfront winner. Current owner has also had a successful vacation rental program with the property, so an easy plug and play investment opportunity to enjoy when you want and have guests pay for it, when you're elsewhere ! No HOA. This home was also featured on HGTV's Beach Hunters. Dare to live the dream!
2/27/2026
Sold Price: $1,650,000
Property Listing Details for 7185 S Highway A1a , Melbourne Beach, FL 32951
Exterior Features
Balcony , Impact Windows , Storm Shutters
Interior Features
Breakfast Bar , Ceiling Fan(s) , Open Floorplan , Primary Bathroom - Tub with Shower , Split Bedrooms , Vaulted Ceiling(s) , Walk-In Closet(s)
Equipment / Appliances
Dishwasher , Dryer , Electric Range , Electric Water Heater , Refrigerator , Washer
Pool
Pool Description
Utilities
Cable Connected , Electricity Connected , Water Connected
Additional Rooms
Bedroom 2 , Bedroom 3 , Dining Room , Family Room , Kitchen , Living Room , Primary Bedroom
Waterfront
Yes
Water Type
Parking
Attached , Garage
Split Floorplan
HOA
HOA Dues
0.00
Construction
Block , Concrete , Fiber Cement , Frame , Stucco
Floor
Laminate , Tile
Exterior Finish
Roof Type
Metal
Fireplace
0
County
Brevard
Gated Community
Furnishings
Negotiable
Home Warranty
Tax Year
2024
Tax Amount
16692.40
55+ Community
Subdivision
Listing Status
Closed
Property Status
Home Style
Home View
Beach , Ocean , Water
Street
7185 S Highway A1a , Melbourne Beach, 32951
Zip Code
D. Basile Real Estate, LLC lists and sells Real Estate and Luxury homes in Melbourne Beach, Merritt Island, Cocoa Beach, Lansing Island, Tortoise Island, Barefoot Bay, Cape Canaveral, Cocoa, Grant Valkaria, Indialantic, Indian Harbour Beach, Malabar, Melbourne, Palm Bay, Rockledge, Satellite Beach, Titusville, West Melbourne and surrounding areas in Brevard.
This listing is courtesy of One Sotheby's International. Property Listing Data contained within the D Basile Real Estate website is the property of Brevard MLS and is provided for consumers looking to purchase real estate. Any other use is prohibited. We are not responsible for errors and omissions on this web site. All information contained herein should be deemed reliable but not guaranteed, all representations are approximate, and individual verification is recommended.
Quick MLS Search
Choose the Area, City, then Type of the property you're looking for

Share us on your network!