Listing Address:
7128 Marbella Court, Cape Canaveral, FL 32920
Price: $625,000
MLS # 1063785
Property Type: Residential
2,187 Total SqFt.
Beds: 3
2,187 Living SqFt.
Baths: 2.00
Year Built: 2005
This property is Active. Please contact us for similar properties.
Property Description:
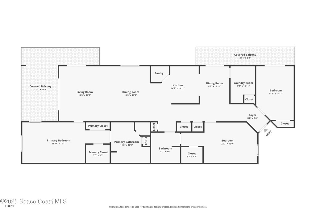
Experience LUXURY RIVERSIDE LIVING in this stunning 4th floor unit at Solana on the River. This spacious 3 bed, 2 bath residence offers spectacular direct PANORAMIC VIEWS of the Banana River, with cruise ships from Port Canaveral visible on the horizon. The open floor plan creates an airy, inviting atmosphere, complemented by a large kitchen and two dining areas. Enjoy abundant natural light from oversized windows throughout. Nearly every room in this exceptional unit offers breathtaking river views! Relax and unwind on your WRAPAROUND PRIVATE BALCONY PATIO, taking in the unforgettable sunsets. Enjoy the best of coastal living with the beach only minutes away. Residents benefit from RESORT-STYLE AMENITIES including a pool, spa, and tennis courts. Storm shutters and a secure underground garage with storage provides convenience and piece of mind. This premium END-UNIT location offers both privacy and unobstructed views in one of Cape Canaveral's most desirable waterfront communities!
Property Listing Details for 7128 Marbella Court, Cape Canaveral, FL 32920
Exterior Features
Balcony , Storm Shutters , Tennis Court(s)
Interior Features
Breakfast Bar , Breakfast Nook , Ceiling Fan(s) , Entrance Foyer , His and Hers Closets , Open Floorplan , Primary Bathroom -Tub with Separate Shower , Split Bedrooms , Walk-In Closet(s)
Equipment / Appliances
Dishwasher , Disposal , Dryer , Electric Range , Microwave , Refrigerator , Washer
Pool
Pool Description
Utilities
Cable Available , Cable Connected , Electricity Available , Electricity Connected , Water Available , Water Connected
Additional Rooms
Bathroom 1 , Bedroom 2 , Bedroom 3 , Dining Room , Kitchen , Laundry , Living Room , Other Room , Primary Bathroom , Primary Bedroom
Waterfront
Yes
Water Type
Parking
Assigned , Detached , Garage , Guest , Parking Lot
Split Floorplan
HOA
HOA Dues
0.00
Construction
Concrete , Stucco
Floor
Carpet , Tile
Exterior Finish
Roof Type
Membrane
Fireplace
0
County
Brevard
Gated Community
Furnishings
Unfurnished
Home Warranty
Tax Year
2025
Tax Amount
5578.49
55+ Community
Subdivision
Listing Status
Active
Property Status
Home Style
Home View
River , Water
Street
7128 Marbella Court, Cape Canaveral, 32920
Zip Code
D. Basile Real Estate, LLC lists and sells Real Estate and Luxury homes in Melbourne Beach, Merritt Island, Cocoa Beach, Lansing Island, Tortoise Island, Barefoot Bay, Cape Canaveral, Cocoa, Grant Valkaria, Indialantic, Indian Harbour Beach, Malabar, Melbourne, Palm Bay, Rockledge, Satellite Beach, Titusville, West Melbourne and surrounding areas in Brevard.
This listing is courtesy of Florida Lifestyle Realty LLC. Property Listing Data contained within the D Basile Real Estate website is the property of Brevard MLS and is provided for consumers looking to purchase real estate. Any other use is prohibited. We are not responsible for errors and omissions on this web site. All information contained herein should be deemed reliable but not guaranteed, all representations are approximate, and individual verification is recommended.
Quick MLS Search
Choose the Area, City, then Type of the property you're looking for

Share us on your network!