Listing Address:
3830 Chardonnay Drive, Rockledge, FL 32955
Price: $599,900
MLS # 1063711
Property Type: Residential
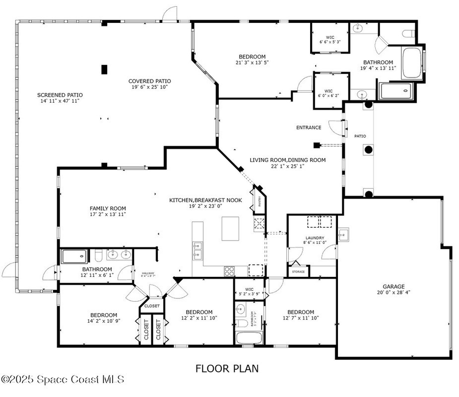
2,554 Total SqFt.
Beds: 4
2,554 Living SqFt.
Baths: 3.00
Year Built: 2004
This property is Active Under Contract. Please contact us for similar properties.
Property Description:
MOTIVATED SELLERS! Nestled in the very desirable gated community of Sonoma in Viera, this meticulously maintained 4-bed/3-bath home offers 2,554 sq ft of elegant living on one of the largest lots (.26 acre) in the neighborhood. Zoned for top rated schools. High ceilings, crown molding, & plantation shutters enhance the refined interior. The huge open kitchen features granite countertops, an island, bar seating, breakfast nook, pantry, & induction cooktop. Spacious master suite includes his & hers custom closets, dual vanities, tub, & separate shower. Split-bedroom layout for privacy. Enjoy the sunsets on the screened lanai with ceiling fans & accordion storm shutters, overlooking the lake. Additional highlights: 3 car garage, water softener, full irrigation system. Amenities: gated entry, playground, park, tennis & basketball courts. Very close to Publix, dining, golf, Brevard Zoo & more. Disney less than 1 hour away. Easy access to 95.
Property Listing Details for 3830 Chardonnay Drive, Rockledge, FL 32955
Exterior Features
Storm Shutters
Interior Features
Breakfast Bar , Ceiling Fan(s) , Eat-in Kitchen , Guest Suite , His and Hers Closets , Open Floorplan , Pantry , Walk-In Closet(s)
Equipment / Appliances
Dishwasher , Disposal , Electric Oven , Electric Water Heater , Ice Maker , Induction Cooktop , Microwave , Other , Refrigerator , Tankless Water Heater , Water Softener Owned
Pool
Pool Description
Utilities
Cable Available , Electricity Connected , Natural Gas Available , Sewer Connected , Water Connected
Additional Rooms
None
Waterfront
Yes
Water Type
Parking
Attached , Garage , Gated , Off Street
Split Floorplan
HOA
HOA Dues
0.00
Construction
Block , Stucco
Floor
Carpet , Laminate , Tile
Exterior Finish
Roof Type
Shingle
Fireplace
0
County
Brevard
Gated Community
Furnishings
Unfurnished
Home Warranty
Tax Year
2025
Tax Amount
3464.32
55+ Community
Subdivision
Listing Status
Active Under Contract
Property Status
Home Style
Contemporary , Traditional
Home View
Water
Street
3830 Chardonnay Drive, Rockledge, 32955
Zip Code
D. Basile Real Estate, LLC lists and sells Real Estate and Luxury homes in Melbourne Beach, Merritt Island, Cocoa Beach, Lansing Island, Tortoise Island, Barefoot Bay, Cape Canaveral, Cocoa, Grant Valkaria, Indialantic, Indian Harbour Beach, Malabar, Melbourne, Palm Bay, Rockledge, Satellite Beach, Titusville, West Melbourne and surrounding areas in Brevard.
This listing is courtesy of MAR Y SOL Properties LLC. Property Listing Data contained within the D Basile Real Estate website is the property of Brevard MLS and is provided for consumers looking to purchase real estate. Any other use is prohibited. We are not responsible for errors and omissions on this web site. All information contained herein should be deemed reliable but not guaranteed, all representations are approximate, and individual verification is recommended.
Quick MLS Search
Choose the Area, City, then Type of the property you're looking for

Share us on your network!