Listing Address:
1201 Cheb Place, Palm Bay, FL 32907
Price: $455,000
MLS # 1063659
Property Type: Residential
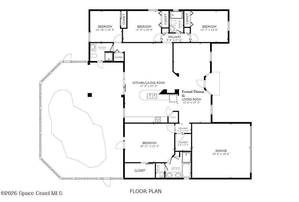
1,972 Total SqFt.
Beds: 4
1,972 Living SqFt.
Baths: 3.00
Year Built: 2001
This property is Closed. Please contact us for similar properties.
Property Description:
Pool home on corner lot with city water & NO HOA. Beautifully updated kitchen with quartz countertops, new appliances & maple cabinets. 4 bedroom & 3 full bath, split floor plan offers both open family room to kitchen & large dining room off formal sitting room or office space. Other updates include Impact windows, living room slider, primary bedroom door, lead glass entry door, water treatment system. Concrete pad & gate added for R/V or boat parking & shed for extra storage. Pool resurfaced 2019, Roof 2019, hot water heater 2020
3/24/2026
Sold Price: $455,000
Property Listing Details for 1201 Cheb Place, Palm Bay, FL 32907
Exterior Features
Impact Windows
Interior Features
Breakfast Bar , Breakfast Nook , Built-in Features , Ceiling Fan(s) , Pantry , Primary Bathroom -Tub with Separate Shower , Split Bedrooms
Equipment / Appliances
Convection Oven , Dishwasher , Electric Range , Induction Cooktop , Microwave , Refrigerator
Pool
Pool Description
Electric Heat , In Ground , Screen Enclosure , Waterfall
Utilities
Electricity Connected , Water Connected
Additional Rooms
None
Waterfront
No
Parking
Attached , Garage , RV Access/Parking
Split Floorplan
HOA
HOA Dues
0.00
Construction
Block , Stucco
Floor
Carpet , Tile
Exterior Finish
Roof Type
Shingle
Fireplace
0
County
Brevard
Gated Community
Furnishings
Unfurnished
Home Warranty
Tax Year
2025
Tax Amount
3070.28
55+ Community
Subdivision
Listing Status
Closed
Property Status
Home Style
Traditional
Home View
Pool
Street
1201 Cheb Place, Palm Bay, 32907
Zip Code
D. Basile Real Estate, LLC lists and sells Real Estate and Luxury homes in Melbourne Beach, Merritt Island, Cocoa Beach, Lansing Island, Tortoise Island, Barefoot Bay, Cape Canaveral, Cocoa, Grant Valkaria, Indialantic, Indian Harbour Beach, Malabar, Melbourne, Palm Bay, Rockledge, Satellite Beach, Titusville, West Melbourne and surrounding areas in Brevard.
This listing is courtesy of Real Broker , LLC. Property Listing Data contained within the D Basile Real Estate website is the property of Brevard MLS and is provided for consumers looking to purchase real estate. Any other use is prohibited. We are not responsible for errors and omissions on this web site. All information contained herein should be deemed reliable but not guaranteed, all representations are approximate, and individual verification is recommended.
Quick MLS Search
Choose the Area, City, then Type of the property you're looking for

Share us on your network!