Listing Address:
1769 Arbor Drive, Melbourne, FL 32935
Price: $449,800
MLS # 1062336
Property Type: Residential
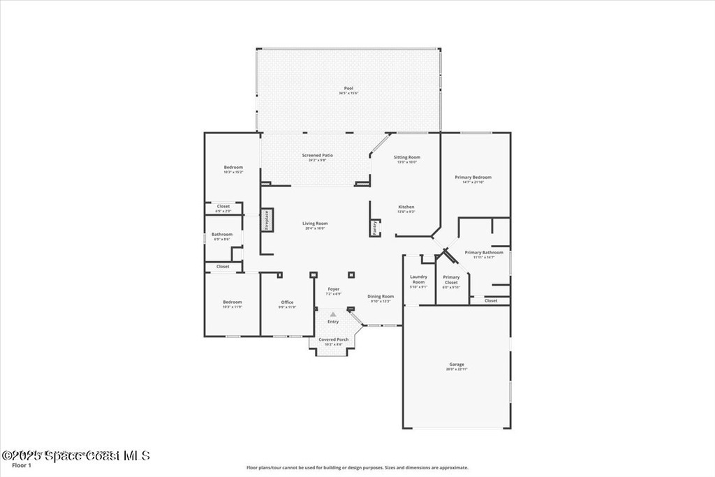
1,915 Total SqFt.
Beds: 3
1,915 Living SqFt.
Baths: 2.00
Year Built: 1996
This property is Closed. Please contact us for similar properties.
Property Description:
In the heart of Melbourne .... this beautiful well-maintained three bedroom two bath home, open plan with a large family room, formal dining room a flex space for office could be fourth bedroom, triple slider that goes to sun-room and offers access to the in-ground screened in swimming pool. Other features: Generac Generator , Hurricane Shutters, Solar panel to heat the pool, Hurricane constructed (Walls filled with cement), Exterior (5) security cameras, Sound proof master bedroom, In ground safe in Master Bedroom Closet. Enjoy the beautiful and established community of Croton Woods conveniently located just minutes to Wickham Park, Wickham Rd for easy access to I-95 or access to Pineda Causeway that leads to areas beautiful beaches. NOTES: per public record roofing permit: 2-26-16, HVAC 2010, Hot water heater, 40 gallon: 2011, 200 amp 120/240 Square D Panel, hurricane shutters in garage.
2/17/2026
Sold Price: $424,000
Property Listing Details for 1769 Arbor Drive, Melbourne, FL 32935
Exterior Features
Storm Shutters
Interior Features
Breakfast Bar , Breakfast Nook , Ceiling Fan(s) , Open Floorplan , Pantry , Primary Bathroom -Tub with Separate Shower , Split Bedrooms , Vaulted Ceiling(s) , Walk-In Closet(s)
Equipment / Appliances
Dishwasher , Disposal , Electric Range , Freezer , Gas Water Heater , Microwave , Refrigerator
Pool
Pool Description
In Ground , Screen Enclosure , Solar Heat
Utilities
Cable Connected , Electricity Connected , Natural Gas Connected , Sewer Connected , Water Connected
Additional Rooms
Bedroom 2 , Bedroom 3 , Dining Room , Family Room , Kitchen , Laundry , Office , Other Room , Primary Bedroom
Waterfront
No
Parking
Garage , Garage Door Opener
Split Floorplan
HOA
HOA Dues
0.00
Construction
Block , Concrete , Stucco
Floor
Tile , Vinyl
Exterior Finish
Roof Type
Shingle
Fireplace
0
County
Brevard
Gated Community
Furnishings
Unfurnished
Home Warranty
Tax Year
2024
Tax Amount
6659.32
55+ Community
Subdivision
Listing Status
Closed
Property Status
Home Style
Traditional
Home View
Street
1769 Arbor Drive, Melbourne, 32935
Zip Code
D. Basile Real Estate, LLC lists and sells Real Estate and Luxury homes in Melbourne Beach, Merritt Island, Cocoa Beach, Lansing Island, Tortoise Island, Barefoot Bay, Cape Canaveral, Cocoa, Grant Valkaria, Indialantic, Indian Harbour Beach, Malabar, Melbourne, Palm Bay, Rockledge, Satellite Beach, Titusville, West Melbourne and surrounding areas in Brevard.
This listing is courtesy of Waterman Real Estate , Inc.. Property Listing Data contained within the D Basile Real Estate website is the property of Brevard MLS and is provided for consumers looking to purchase real estate. Any other use is prohibited. We are not responsible for errors and omissions on this web site. All information contained herein should be deemed reliable but not guaranteed, all representations are approximate, and individual verification is recommended.
Quick MLS Search
Choose the Area, City, then Type of the property you're looking for

Share us on your network!