Listing Address:
1815 Villa Espana Trail, Melbourne, FL 32935
Price: $1,050,000
MLS # 1062011
Property Type: Residential
5,745 Total SqFt.
Beds: 5
5,745 Living SqFt.
Baths: 7.00 ½ Baths: 1
Year Built: 1978
This property is Closed. Please contact us for similar properties.
Property Description:
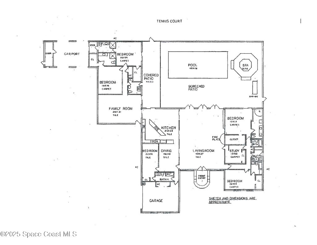
Nestled within a unique gated community in the heart of Melbourne, this 2.46-acre estate offers a spacious, multigenerational home designed to accommodate multiple families. Enjoy a game of tennis on your private court, cool off in the 18x40 pool, or relax in the spa (note: spa leaks) on your private screened patio. The 40x27 living room features a fireplace and wet bar, opening to the screened pool area for seamless entertaining. Children can enjoy TV time in the 28x21 family room located on the opposite side of the house. The three-way split floor plan, with separate entrances, hosts five primary suites and a study, providing room and privacy for family, extended family, and guests. The eat-in kitchen (25x23) and formal dining room (18x13) are perfect for family meals and entertaining.
1/26/2026
Sold Price: $975,000
Property Listing Details for 1815 Villa Espana Trail, Melbourne, FL 32935
Exterior Features
Outdoor Shower
Interior Features
Breakfast Bar , Ceiling Fan(s) , Kitchen Island , Open Floorplan , Vaulted Ceiling(s) , Walk-In Closet(s) , Wet Bar
Equipment / Appliances
Dishwasher , Disposal , Double Oven , Dryer , Electric Cooktop , Freezer , Microwave , Refrigerator , Washer
Pool
Pool Description
In Ground , Screen Enclosure
Utilities
Cable Available , Electricity Connected , Water Available
Additional Rooms
None
Waterfront
No
Parking
Attached , Carport , Circular Driveway , Garage , Garage Door Opener , RV Access/Parking
Split Floorplan
HOA
HOA Dues
0.00
Construction
Block , Concrete , Stucco
Floor
Carpet , Marble , Tile
Exterior Finish
Roof Type
Fireplace
0
County
Brevard
Gated Community
Furnishings
Unfurnished
Home Warranty
Tax Year
2024
Tax Amount
7133.07
55+ Community
Subdivision
Listing Status
Closed
Property Status
Home Style
Home View
Street
1815 Villa Espana Trail, Melbourne, 32935
Zip Code
D. Basile Real Estate, LLC lists and sells Real Estate and Luxury homes in Melbourne Beach, Merritt Island, Cocoa Beach, Lansing Island, Tortoise Island, Barefoot Bay, Cape Canaveral, Cocoa, Grant Valkaria, Indialantic, Indian Harbour Beach, Malabar, Melbourne, Palm Bay, Rockledge, Satellite Beach, Titusville, West Melbourne and surrounding areas in Brevard.
This listing is courtesy of Rahal Real Estate LLC. Property Listing Data contained within the D Basile Real Estate website is the property of Brevard MLS and is provided for consumers looking to purchase real estate. Any other use is prohibited. We are not responsible for errors and omissions on this web site. All information contained herein should be deemed reliable but not guaranteed, all representations are approximate, and individual verification is recommended.
Quick MLS Search
Choose the Area, City, then Type of the property you're looking for

Share us on your network!