Listing Address:
2029 Ivy Drive, Cocoa, FL 32922
Price: $239,000
MLS # 1061609
Property Type: Residential
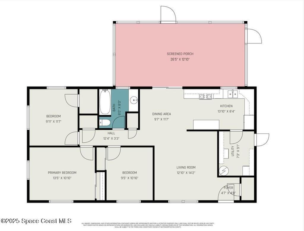
1,081 Total SqFt.
Beds: 3
1,081 Living SqFt.
Baths: 1.00
Year Built: 1963
This property is Active Under Contract. Please contact us for similar properties.
Property Description:
$10K PRICE DROP - Quaint Single Family detached home with nice upgrades in a quiet neighborhood. This well-maintained property sits on a large, fenced lot with beautiful landscaping. A cozy floorplan with plenty of natural light. Newer stainless-steel appliances, upgraded countertops & backsplash, soft close drawers & under-mount motion lighting, bathroom has been updated, newer windows & slider, roof 2020, HVAC/Heat Pump 2014, newer gas water heater, indoor plumbing replaced, updated electrical panel, newer flooring tile/vinyl (no carpet), irrigation from well, survey 2024, indoor laundry (washer & dryer stay), workshop has electric & window A/C, 2 sheds (larger one has electric),concrete slab for RV. One of the highlights of this home is the 28x12 screened rear porch, under roof with waterproof vinyl flooring added in 2017. Step out through the slider for a great extension for entertaining or just hanging out enjoying the cool nights. Home is convenient to everything
Property Listing Details for 2029 Ivy Drive, Cocoa, FL 32922
Exterior Features
Interior Features
Ceiling Fan(s) , Primary Bathroom - Tub with Shower , Walk-In Closet(s)
Equipment / Appliances
Dishwasher , Dryer , Gas Oven , Gas Range , Gas Water Heater , Microwave , Refrigerator , Washer
Pool
Pool Description
Utilities
Cable Available , Electricity Connected , Natural Gas Connected , Sewer Connected , Water Connected
Additional Rooms
None
Waterfront
No
Parking
Attached Carport , Carport , RV Access/Parking
Split Floorplan
HOA
HOA Dues
0.00
Construction
Block , Concrete
Floor
Laminate , Tile
Exterior Finish
Roof Type
Shingle
Fireplace
0
County
Brevard
Gated Community
Furnishings
Unfurnished
Home Warranty
Tax Year
2025
Tax Amount
975.15
55+ Community
Subdivision
Listing Status
Active Under Contract
Property Status
Home Style
Ranch
Home View
Other
Street
2029 Ivy Drive, Cocoa, 32922
Zip Code
D. Basile Real Estate, LLC lists and sells Real Estate and Luxury homes in Melbourne Beach, Merritt Island, Cocoa Beach, Lansing Island, Tortoise Island, Barefoot Bay, Cape Canaveral, Cocoa, Grant Valkaria, Indialantic, Indian Harbour Beach, Malabar, Melbourne, Palm Bay, Rockledge, Satellite Beach, Titusville, West Melbourne and surrounding areas in Brevard.
This listing is courtesy of Weichert REALTORS Hallmark Pro. Property Listing Data contained within the D Basile Real Estate website is the property of Brevard MLS and is provided for consumers looking to purchase real estate. Any other use is prohibited. We are not responsible for errors and omissions on this web site. All information contained herein should be deemed reliable but not guaranteed, all representations are approximate, and individual verification is recommended.
Quick MLS Search
Choose the Area, City, then Type of the property you're looking for

Share us on your network!