Listing Address:
463 Brozman Lane, Cocoa, FL 32927
Price: $254,900
MLS # 1061598
Property Type: Residential
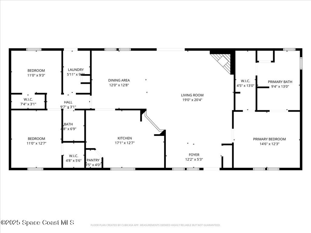
1,664 Total SqFt.
Beds: 3
1,664 Living SqFt.
Baths: 2.00
Year Built: 1994
This property is Active Under Contract. Please contact us for similar properties.
Property Description:
This fully updated property is ideally located and checks all the boxes. It features 3 bedrooms and 2 bathrooms on over a quarter-acre at the end of a peaceful cul-de-sac, offering ample lot space and no through traffic. The home boasts a new roof, modernized kitchen and bathrooms, fresh interior paint, and over 1,600 square feet of move-in-ready living space. The fully fenced backyard provides a quintessential Florida lifestyle with lush landscaping, a large covered deck, and a spacious storage shed. Brozman Lane is renowned for its privacy, spaciousness, and convenience--just minutes from US1, 528, Titusville, Canaveral Groves, and beaches. Affordable luxury in a prime location--this property won't stay available for long.
Property Listing Details for 463 Brozman Lane, Cocoa, FL 32927
Exterior Features
Interior Features
Breakfast Bar , Ceiling Fan(s) , Open Floorplan , Pantry , Primary Bathroom -Tub with Separate Shower , Split Bedrooms , Walk-In Closet(s)
Equipment / Appliances
Dishwasher , Electric Oven , Freezer , Ice Maker , Refrigerator
Pool
Pool Description
Utilities
Cable Available , Electricity Available , Electricity Connected , Water Available , Water Connected
Additional Rooms
None
Waterfront
No
Parking
Additional Parking , Detached Carport , Off Street
Split Floorplan
HOA
HOA Dues
0.00
Construction
Vinyl Siding
Floor
Carpet , Vinyl , Wood
Exterior Finish
Roof Type
Shingle
Fireplace
0
County
Brevard
Gated Community
Furnishings
Unfurnished
Home Warranty
Tax Year
2025
Tax Amount
0.00
55+ Community
Subdivision
Listing Status
Active Under Contract
Property Status
Home Style
Traditional
Home View
Trees/Woods
Street
463 Brozman Lane, Cocoa, 32927
Zip Code
D. Basile Real Estate, LLC lists and sells Real Estate and Luxury homes in Melbourne Beach, Merritt Island, Cocoa Beach, Lansing Island, Tortoise Island, Barefoot Bay, Cape Canaveral, Cocoa, Grant Valkaria, Indialantic, Indian Harbour Beach, Malabar, Melbourne, Palm Bay, Rockledge, Satellite Beach, Titusville, West Melbourne and surrounding areas in Brevard.
This listing is courtesy of Lokation Real Estate. Property Listing Data contained within the D Basile Real Estate website is the property of Brevard MLS and is provided for consumers looking to purchase real estate. Any other use is prohibited. We are not responsible for errors and omissions on this web site. All information contained herein should be deemed reliable but not guaranteed, all representations are approximate, and individual verification is recommended.
Quick MLS Search
Choose the Area, City, then Type of the property you're looking for

Share us on your network!