Listing Address:
6005 S Highway 1 , Rockledge, FL 32955
Price: $596,500
MLS # 1060960
Property Type: Residential
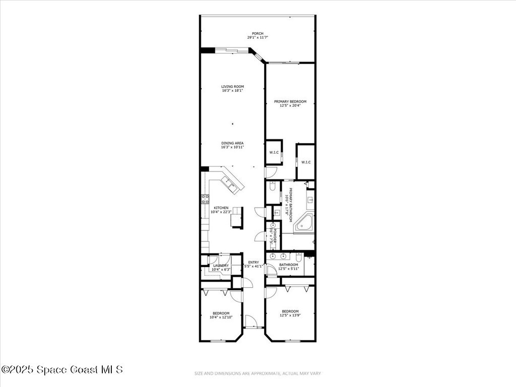
2,138 Total SqFt.
Beds: 3
2,138 Living SqFt.
Baths: 3.00 ½ Baths: 1
Year Built: 2006
This property is Closed. Please contact us for similar properties.
Property Description:
Be sure to include this updated Laguna Vista condo on your ''Must See List'! Move-in ready and beautifully maintained, convenient first-floor riverfront unit is located on the South side of the building and includes a private oversized two-car garage on the same side for easy access. This spacious condo features 3 bedrooms, 2.5 bathrooms, and an open floor plan with high ceilings. Tile flooring runs throughout the main living areas, with carpet in the bedrooms for added comfort. The utility room includes a washer, dryer, and utility sink for convenience. Step out to the tiled, covered back porch - complete with a gate that provides direct access to the pool, spa, and dock area, perfect for swimming, relaxing, or fishing, etc. Take in the stunning sunrise views over the Intracoastal River and enjoy watching rocket launches to the North right from your own backyard! The updated kitchen is truly impressive, featuring abundant cabinetry, stainless steel appliances, and modern finishes.
2/19/2026
Sold Price: $560,000
Property Listing Details for 6005 S Highway 1 , Rockledge, FL 32955
Exterior Features
Interior Features
Breakfast Bar , Ceiling Fan(s) , His and Hers Closets , Open Floorplan , Primary Bathroom -Tub with Separate Shower , Walk-In Closet(s)
Equipment / Appliances
Dishwasher , Dryer , Electric Oven , Electric Range , Electric Water Heater , Microwave , Plumbed For Ice Maker , Refrigerator , Washer
Pool
Pool Description
Utilities
Electricity Connected , Sewer Connected , Water Connected
Additional Rooms
None
Waterfront
Yes
Water Type
Parking
Additional Parking , Detached , Garage , Gated
Split Floorplan
HOA
HOA Dues
0.00
Construction
Block , Stucco
Floor
Carpet , Tile
Exterior Finish
Roof Type
Membrane
Fireplace
0
County
Brevard
Gated Community
Furnishings
Negotiable
Home Warranty
Tax Year
2025
Tax Amount
0.00
55+ Community
Subdivision
Listing Status
Closed
Property Status
Home Style
Home View
Intracoastal , River
Street
6005 S Highway 1 , Rockledge, 32955
Zip Code
D. Basile Real Estate, LLC lists and sells Real Estate and Luxury homes in Melbourne Beach, Merritt Island, Cocoa Beach, Lansing Island, Tortoise Island, Barefoot Bay, Cape Canaveral, Cocoa, Grant Valkaria, Indialantic, Indian Harbour Beach, Malabar, Melbourne, Palm Bay, Rockledge, Satellite Beach, Titusville, West Melbourne and surrounding areas in Brevard.
This listing is courtesy of RE/MAX Aerospace Realty. Property Listing Data contained within the D Basile Real Estate website is the property of Brevard MLS and is provided for consumers looking to purchase real estate. Any other use is prohibited. We are not responsible for errors and omissions on this web site. All information contained herein should be deemed reliable but not guaranteed, all representations are approximate, and individual verification is recommended.
Quick MLS Search
Choose the Area, City, then Type of the property you're looking for

Share us on your network!