Listing Address:
4035 Post Road, Melbourne, FL 32934
Price: $1,799,000
MLS # 1060791
Property Type: Residential
4,587 Total SqFt.
Beds: 6
4,587 Living SqFt.
Baths: 4.00
Year Built: 2002
This property is Closed. Please contact us for similar properties.
Property Description:
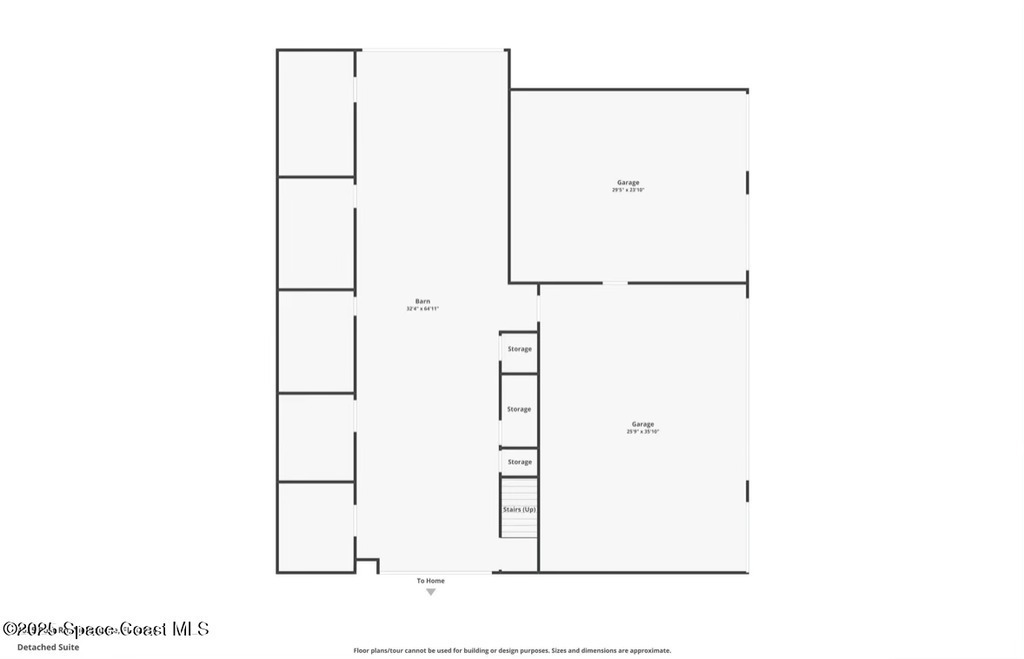
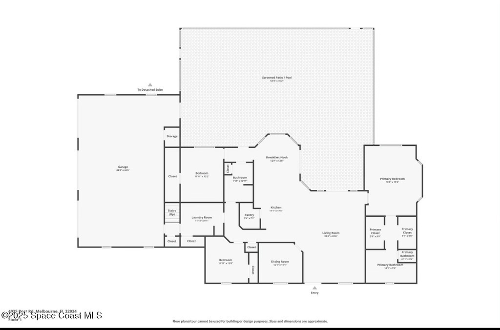
Calling all Car/horse enthusiasts! This luxurious 4+ acre fully fenced estate has a total of 6 bed 4 Bath 8 car garage and 5 horse stalls with turnouts in Lake Washington. This remodeled gem has travertine floors throughout, a wine/cigar room w/ smoke eater, pebble ice maker, wine dispenser and beverage fridge. The gourmet kitchen features Monogram appliances, induction cooktop, pot filler and hidden walk in pantry. The oversized primary bedroom features two walk in closets, dual shower heads, 2 sinks and a urinal. The laundry room has 4 built-in dog kennels and a dog shower. The upstairs features a living area, 1 large bedroom, 1 bath with jacuzzi tub and lots of closet space and storage. The back yard has a fully screened saltwater pool w/ hot tub and outdoor shower. Right outside the pool area is a built in fire pit and putting green. The barn features oversized 5 car garage , 5 horse stalls and a 2/1 apartment on the second floor. House is priced below recently appraised value.
12/18/2025
Sold Price: $1,799,000
Property Listing Details for 4035 Post Road, Melbourne, FL 32934
Exterior Features
Fire Pit , Other , Outdoor Shower
Interior Features
Breakfast Bar , Breakfast Nook , Built-in Features , Butler Pantry , Ceiling Fan(s) , Eat-in Kitchen , Guest Suite , His and Hers Closets , In-Law Floorplan , Kitchen Island , Open Floorplan , Primary Bathroom - Shower No Tub , Primary Downstairs , Split Bedrooms , Walk-In Closet(s) , Wine Cellar
Equipment / Appliances
Convection Oven , Dishwasher , Disposal , Double Oven , Electric Water Heater , Ice Maker , Induction Cooktop , Microwave , Refrigerator , Wine Cooler
Pool
Pool Description
Electric Heat , In Ground , Salt Water , Waterfall
Utilities
Cable Available , Water Available , Water Connected
Additional Rooms
None
Waterfront
No
Parking
Additional Parking , Attached , Carport , Circular Driveway , Detached Carport , Garage , Garage Door Opener , Gated , RV Access/Parking
Split Floorplan
HOA
HOA Dues
0.00
Construction
Block , Frame
Floor
Other
Exterior Finish
Roof Type
Shingle
D. Basile Real Estate, LLC lists and sells Real Estate and Luxury homes in Melbourne Beach, Merritt Island, Cocoa Beach, Lansing Island, Tortoise Island, Barefoot Bay, Cape Canaveral, Cocoa, Grant Valkaria, Indialantic, Indian Harbour Beach, Malabar, Melbourne, Palm Bay, Rockledge, Satellite Beach, Titusville, West Melbourne and surrounding areas in Brevard.
This listing is courtesy of J. Edwards Real Estate. Property Listing Data contained within the D Basile Real Estate website is the property of Brevard MLS and is provided for consumers looking to purchase real estate. Any other use is prohibited. We are not responsible for errors and omissions on this web site. All information contained herein should be deemed reliable but not guaranteed, all representations are approximate, and individual verification is recommended.
Quick MLS Search
Choose the Area, City, then Type of the property you're looking for

Share us on your network!