Listing Address:
871 Southern Pine Trail, Rockledge, FL 32955
Price: $360,000
MLS # 1060563
Property Type: Residential
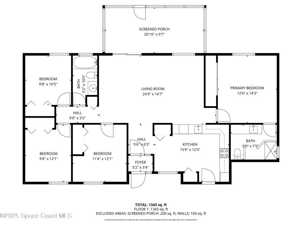
1,364 Total SqFt.
Beds: 4
1,364 Living SqFt.
Baths: 2.00
Year Built: 1986
This property is Active. Please contact us for similar properties.
Property Description:
BACK ON THE MARKET!! Beautiful 4-Bedroom Family Home with Modern Upgrades & Room to Grow! Welcome home! This spacious 4-bedroom, 2-bath home has everything your family needs and more. You'll love the open, welcoming layout and all the thoughtful updates throughout. The updated kitchen is the heart of the home, featuring granite countertops, soft-close cabinets and drawers, and a range with convection oven--perfect for family meals and holiday gatherings. Both bathrooms have been beautifully renovated with granite vanities, giving the whole home a fresh, modern feel. Enjoy easy living with plank ceramic tile flooring, a tankless water heater, and a 5-year-old HVAC system with MERV-11 ducts for cleaner air. The metal roof, high-impact windows (rated up to 175 mph), and Hardy Plank Concrete Siding offer lasting peace of mind during any season. Step outside in your lovely screened lanai featuring STAMPED CONCRETE flooring with room for a luxurious hot tub
Property Listing Details for 871 Southern Pine Trail, Rockledge, FL 32955
Exterior Features
Impact Windows
Interior Features
Breakfast Nook , Ceiling Fan(s) , Pantry , Primary Bathroom - Shower No Tub , Split Bedrooms , Vaulted Ceiling(s)
Equipment / Appliances
Convection Oven , Dishwasher , Disposal , Electric Range , Refrigerator , Tankless Water Heater
Pool
Pool Description
Utilities
Cable Available , Electricity Connected , Sewer Connected , Water Connected
Additional Rooms
None
Waterfront
No
Parking
Garage , Garage Door Opener
Split Floorplan
HOA
HOA Dues
0.00
Construction
Composition Siding , Frame
Floor
Carpet , Concrete , Tile
Exterior Finish
Roof Type
Metal
Fireplace
0
County
Brevard
Gated Community
Furnishings
Unfurnished
Home Warranty
Tax Year
2025
Tax Amount
0.00
55+ Community
Subdivision
Listing Status
Active
Property Status
Home Style
Home View
Street
871 Southern Pine Trail, Rockledge, 32955
Zip Code
D. Basile Real Estate, LLC lists and sells Real Estate and Luxury homes in Melbourne Beach, Merritt Island, Cocoa Beach, Lansing Island, Tortoise Island, Barefoot Bay, Cape Canaveral, Cocoa, Grant Valkaria, Indialantic, Indian Harbour Beach, Malabar, Melbourne, Palm Bay, Rockledge, Satellite Beach, Titusville, West Melbourne and surrounding areas in Brevard.
This listing is courtesy of Legacy Real Estate Partners. Property Listing Data contained within the D Basile Real Estate website is the property of Brevard MLS and is provided for consumers looking to purchase real estate. Any other use is prohibited. We are not responsible for errors and omissions on this web site. All information contained herein should be deemed reliable but not guaranteed, all representations are approximate, and individual verification is recommended.
Quick MLS Search
Choose the Area, City, then Type of the property you're looking for

Share us on your network!