Listing Address:
441 N Harbor City Boulevard, Melbourne, FL 32935
Price: $200,000
MLS # 1060180
Property Type: Residential
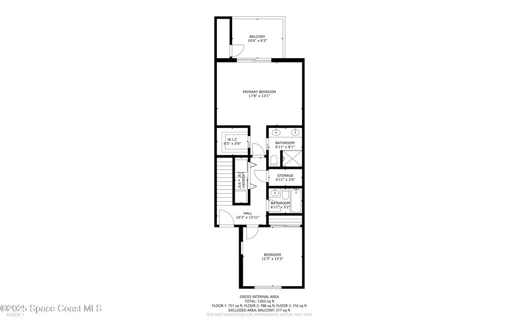
1,865 Total SqFt.
Beds: 2
1,865 Living SqFt.
Baths: 3.00 ½ Baths: 1
Year Built: 1980
This property is Closed. Please contact us for similar properties.
Property Description:
Centrally located 2 bed, 2.5 bath condo in the heart of Melbourne with GORGEOUS views of the Indian River! Nestled towards the end of the complex, this unit provides privacy while still being steps away from the community pool. Two bedrooms + two full baths are perfect for roommates, guests, or multigenerational living. Main level will take your breath away with panoramic RIVER VIEWS from the living room, dining area, and attached balcony. Kitchen includes newer appliances and a beachy blue theme. A flex space behind the kitchen hides a large pantry + room for an informal breakfast area or office space. Upstairs LOFT provides additional space for an office, or a relaxing retreat to enjoy MORE stunning river views. This versatile unit is move-in ready, while also providing opportunities for new owners to put on their own finishing touches! Don't miss out on this affordable slice of riverside paradise!
12/29/2025
Sold Price: $195,000
Property Listing Details for 441 N Harbor City Boulevard, Melbourne, FL 32935
Exterior Features
Balcony
Interior Features
Breakfast Nook , Eat-in Kitchen , Pantry , Vaulted Ceiling(s)
Equipment / Appliances
Dishwasher , Disposal , Dryer , Electric Cooktop , Electric Oven , Refrigerator , Washer
Pool
Pool Description
Utilities
Cable Available , Electricity Connected , Sewer Connected , Water Connected
Additional Rooms
None
Waterfront
Yes
Water Type
Parking
Carport , Covered
Split Floorplan
HOA
HOA Dues
0.00
Construction
Block , Wood Siding
Floor
Exterior Finish
Roof Type
Fireplace
0
County
Brevard
Gated Community
Furnishings
Unfurnished
Home Warranty
Tax Year
2025
Tax Amount
2188.37
55+ Community
Subdivision
Listing Status
Closed
Property Status
Home Style
Home View
River
Street
441 N Harbor City Boulevard, Melbourne, 32935
Zip Code
D. Basile Real Estate, LLC lists and sells Real Estate and Luxury homes in Melbourne Beach, Merritt Island, Cocoa Beach, Lansing Island, Tortoise Island, Barefoot Bay, Cape Canaveral, Cocoa, Grant Valkaria, Indialantic, Indian Harbour Beach, Malabar, Melbourne, Palm Bay, Rockledge, Satellite Beach, Titusville, West Melbourne and surrounding areas in Brevard.
This listing is courtesy of Coldwell Banker Realty. Property Listing Data contained within the D Basile Real Estate website is the property of Brevard MLS and is provided for consumers looking to purchase real estate. Any other use is prohibited. We are not responsible for errors and omissions on this web site. All information contained herein should be deemed reliable but not guaranteed, all representations are approximate, and individual verification is recommended.
Quick MLS Search
Choose the Area, City, then Type of the property you're looking for

Share us on your network!