Listing Address:
1795 Hallum Avenue, Titusville, FL 32796
Price: $285,000
MLS # 1059899
Property Type: Residential
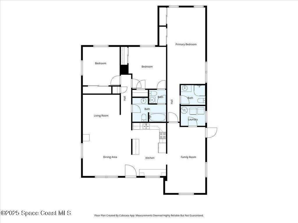
1,719 Total SqFt.
Beds: 3
1,719 Living SqFt.
Baths: 3.00 ½ Baths: 1
Year Built: 1962
This property is Closed. Please contact us for similar properties.
Property Description:
Roof and HVAC 2015, Septic and drainfield replaced in 2022, new electrical panel 2025, and full repipe! This Titusville home is move in ready with all big ticket items updated. Home offers a desirable split floor plan, two separate living areas, formal dining space, and an interior laundry room. The primary suite is expansive with room for a sitting area, office space, or workout corner. The kitchen boasts a lot of natural light, stainless steel appliances, and solid wood cabinetry. Large oversized lot offers a fenced in backyard, storage shed, and garden beds along the right side of the yard. Conveniently positioned just a short drive to historic downtown Titusville, the Playhouse, Kennedy Space Center, and Florida's beautiful beaches.
12/30/2025
Sold Price: $285,000
Property Listing Details for 1795 Hallum Avenue, Titusville, FL 32796
Exterior Features
Interior Features
Breakfast Bar , Built-in Features , Ceiling Fan(s) , Eat-in Kitchen , Split Bedrooms
Equipment / Appliances
Dishwasher , Electric Range , Electric Water Heater , Microwave , Refrigerator
Pool
Pool Description
Utilities
Electricity Connected , Sewer Connected , Water Connected
Additional Rooms
None
Waterfront
No
Parking
Additional Parking
Split Floorplan
HOA
HOA Dues
0.00
Construction
Block , Vinyl Siding
Floor
Tile
Exterior Finish
Roof Type
Shingle
Fireplace
0
County
Brevard
Gated Community
Furnishings
Unfurnished
Home Warranty
Tax Year
2025
Tax Amount
2304.70
55+ Community
Subdivision
Listing Status
Closed
Property Status
Home Style
Home View
Street
1795 Hallum Avenue, Titusville, 32796
Zip Code
D. Basile Real Estate, LLC lists and sells Real Estate and Luxury homes in Melbourne Beach, Merritt Island, Cocoa Beach, Lansing Island, Tortoise Island, Barefoot Bay, Cape Canaveral, Cocoa, Grant Valkaria, Indialantic, Indian Harbour Beach, Malabar, Melbourne, Palm Bay, Rockledge, Satellite Beach, Titusville, West Melbourne and surrounding areas in Brevard.
This listing is courtesy of Real Broker LLC. Property Listing Data contained within the D Basile Real Estate website is the property of Brevard MLS and is provided for consumers looking to purchase real estate. Any other use is prohibited. We are not responsible for errors and omissions on this web site. All information contained herein should be deemed reliable but not guaranteed, all representations are approximate, and individual verification is recommended.
Quick MLS Search
Choose the Area, City, then Type of the property you're looking for

Share us on your network!