Listing Address:
3883 La Flor Drive, Rockledge, FL 32955
Price: $360,000
MLS # 1059837
Property Type: Residential
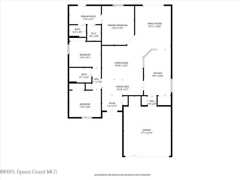
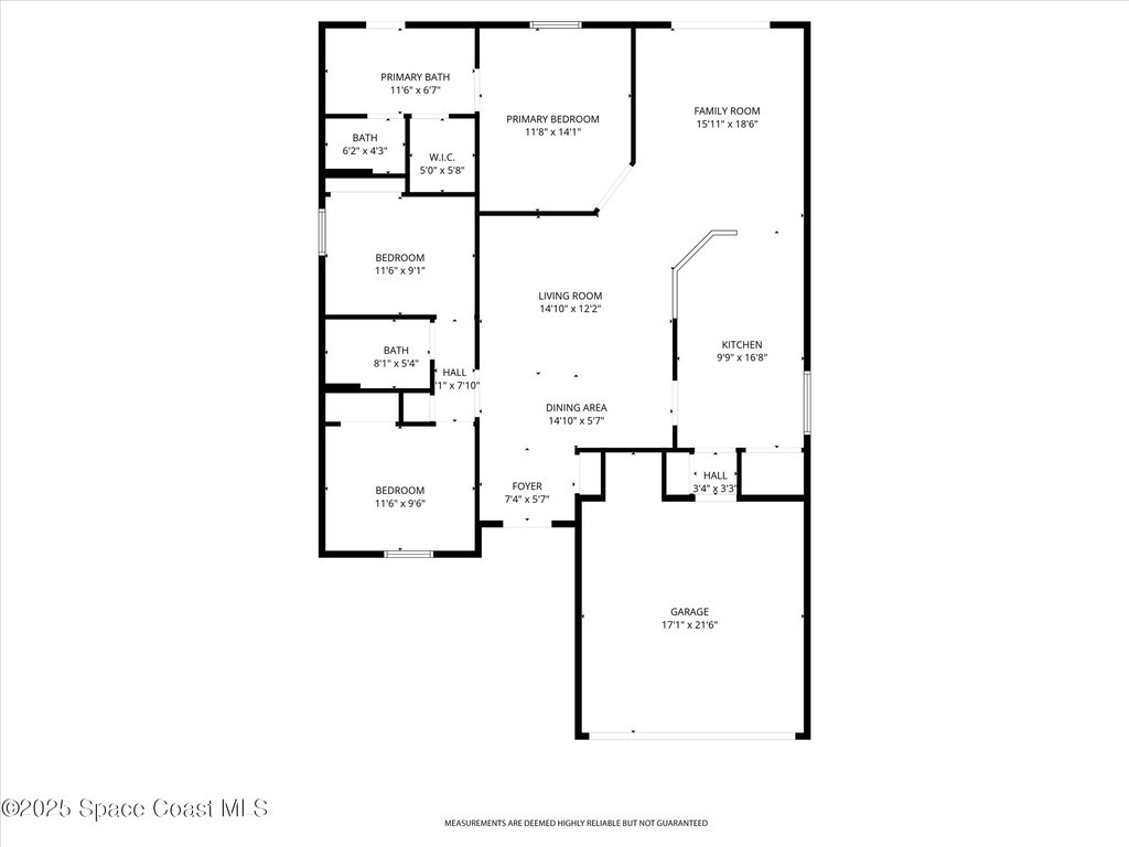
1,472 Total SqFt.
Beds: 3
1,472 Living SqFt.
Baths: 2.00
Year Built: 2000
This property is Closed. Please contact us for similar properties.
Property Description:
This beautifully maintained one owner home has been thoughtfully updated for comfort and peace of mind. This 3 bedroom 2 bath s located in a quiet, established neighborhood just minutes from shopping, dining, and I-95. Major updates include a new roof in 2020, a new HVAC system in 2019, and professionally installed air ducts in 2023. Inside, you'll find fresh carpet and tile flooring, and the primary bathroom shower was remodeled in 2024. Natural light fills the inviting living spaces, and the split floor plan offers flexibility to suit a variety of lifestyles. The open kitchen connects to the dining and living areas, creating an ideal setting for both everyday living and entertaining. Outside, the spacious backyard provides room to relax or garden. Conveniently located near schools, parks, beaches, and major employers, this move-in-ready home is a must see. Community amenities include a pool, tennis court, basketball court, and playground.
11/25/2025
Sold Price: $360,000
Property Listing Details for 3883 La Flor Drive, Rockledge, FL 32955
Exterior Features
Storm Shutters
Interior Features
Breakfast Bar , Ceiling Fan(s) , Eat-in Kitchen , Open Floorplan , Primary Bathroom -Tub with Separate Shower , Split Bedrooms , Walk-In Closet(s)
Equipment / Appliances
Dishwasher , Dryer , Electric Range , Refrigerator , Washer
Pool
Pool Description
Utilities
Cable Available , Electricity Connected , Sewer Connected , Water Connected
Additional Rooms
None
Waterfront
No
Parking
Garage
Split Floorplan
HOA
HOA Dues
0.00
Construction
Block , Concrete , Stucco
Floor
Carpet , Tile
Exterior Finish
Roof Type
Shingle
Fireplace
0
County
Brevard
Gated Community
Furnishings
Unfurnished
Home Warranty
Tax Year
2023
Tax Amount
1372.10
55+ Community
Subdivision
Listing Status
Closed
Property Status
Home Style
Home View
Street
3883 La Flor Drive, Rockledge, 32955
Zip Code
D. Basile Real Estate, LLC lists and sells Real Estate and Luxury homes in Melbourne Beach, Merritt Island, Cocoa Beach, Lansing Island, Tortoise Island, Barefoot Bay, Cape Canaveral, Cocoa, Grant Valkaria, Indialantic, Indian Harbour Beach, Malabar, Melbourne, Palm Bay, Rockledge, Satellite Beach, Titusville, West Melbourne and surrounding areas in Brevard.
This listing is courtesy of Real Broker , LLC. Property Listing Data contained within the D Basile Real Estate website is the property of Brevard MLS and is provided for consumers looking to purchase real estate. Any other use is prohibited. We are not responsible for errors and omissions on this web site. All information contained herein should be deemed reliable but not guaranteed, all representations are approximate, and individual verification is recommended.
Quick MLS Search
Choose the Area, City, then Type of the property you're looking for

Share us on your network!