Listing Address:
2688 Trails At Hidden Hbr , Merritt Island, FL 32952
Price: $565,000
MLS # 1059562
Property Type: Residential
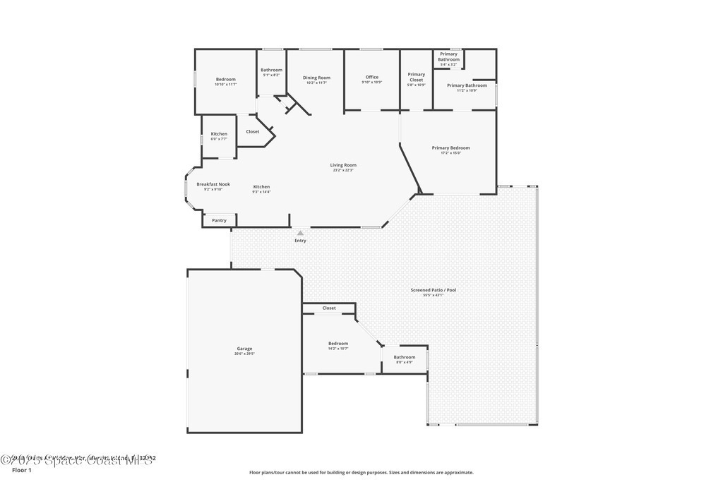
1,968 Total SqFt.
Beds: 3
1,968 Living SqFt.
Baths: 3.00
Year Built: 2002
This property is Closed. Please contact us for similar properties.
Property Description:
72 HOUR KICK OUT IN PLACE - Welcome to River Grove, one of South Merritt Island's premier executive communities featuring a private community dock for fishing, kayaking, or sunset views on the Indian River. This 3-bedroom, 3-bath home offers an inviting pool view the moment you step inside, creating the perfect Florida lifestyle. The open layout is bright and spacious, complemented by a private in-law suite ideal for multi-generational living or guests. Recent upgrades include a brand-new 2025 A/C unit, new microwave, and new dishwasher. Enjoy outdoor living at its best with a screened pool area and lush tropical surroundings. Pride of ownership shines throughout this beautifully maintained home in one of South Merritt Island's most sought-after neighborhoods.
3/02/2026
Sold Price: $556,000
Property Listing Details for 2688 Trails At Hidden Hbr , Merritt Island, FL 32952
Exterior Features
Interior Features
Breakfast Bar , Breakfast Nook , Ceiling Fan(s) , Guest Suite , In-Law Floorplan , Kitchen Island , Open Floorplan , Pantry , Primary Bathroom -Tub with Separate Shower , Primary Downstairs , Split Bedrooms , Walk-In Closet(s)
Equipment / Appliances
Disposal , Electric Range , Electric Water Heater , ENERGY STAR Qualified Dishwasher , Ice Maker , Microwave , Refrigerator
Pool
Pool Description
In Ground , Screen Enclosure
Utilities
Cable Available , Electricity Connected , Water Connected
Additional Rooms
None
Waterfront
No
Parking
Attached , Garage
Split Floorplan
HOA
HOA Dues
0.00
Construction
Concrete , Stucco
Floor
Carpet , Tile
Exterior Finish
Roof Type
Fireplace
0
County
Brevard
Gated Community
Furnishings
Unfurnished
Home Warranty
Tax Year
2023
Tax Amount
6066.30
55+ Community
Subdivision
Listing Status
Closed
Property Status
Home Style
Home View
Pool , Trees/Woods
Street
2688 Trails At Hidden Hbr , Merritt Island, 32952
Zip Code
D. Basile Real Estate, LLC lists and sells Real Estate and Luxury homes in Melbourne Beach, Merritt Island, Cocoa Beach, Lansing Island, Tortoise Island, Barefoot Bay, Cape Canaveral, Cocoa, Grant Valkaria, Indialantic, Indian Harbour Beach, Malabar, Melbourne, Palm Bay, Rockledge, Satellite Beach, Titusville, West Melbourne and surrounding areas in Brevard.
This listing is courtesy of Compass Florida , LLC. Property Listing Data contained within the D Basile Real Estate website is the property of Brevard MLS and is provided for consumers looking to purchase real estate. Any other use is prohibited. We are not responsible for errors and omissions on this web site. All information contained herein should be deemed reliable but not guaranteed, all representations are approximate, and individual verification is recommended.
Quick MLS Search
Choose the Area, City, then Type of the property you're looking for

Share us on your network!