Listing Address:
1585 Anchor Lane, Merritt Island, FL 32952
Price: $305,000
MLS # 1059379
Property Type: Residential
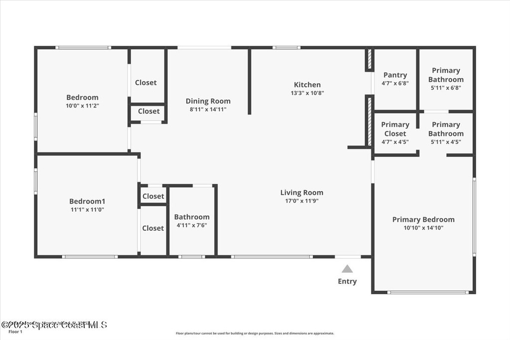
1,224 Total SqFt.
Beds: 3
1,224 Living SqFt.
Baths: 2.00
Year Built: 1960
This property is Closed. Please contact us for similar properties.
Property Description:
Move-in ready and minutes from the beach, river, and Port Canaveral! This updated Merritt Island home offers 3 spacious bedrooms, 2 baths, an open split floor plan, tile throughout for easy maintenance, and a fenced backyard with room to play--plus space to park your boat or RV! The remodeled kitchen shines with 42'' wood cabinets, granite counters throughout, an kitchen island, and stainless appliances. Major updates include full renovation (2016), roof (2017), flat roof portion (8/24), AC capacitor replaced (8/25), heating strip replaced (1/25), and tankless water heater (8/25) for energy savings. Sliding glass door to be replaced 10/25. Interior laundry room w/washer & dryer included and hurricane panels for additional peace of mind! Don't hesitate to view this amazing Merritt Island home at an incredible price before it's too late! Schedule your private showing today!
3/04/2026
Sold Price: $300,000
Property Listing Details for 1585 Anchor Lane, Merritt Island, FL 32952
Exterior Features
Storm Shutters
Interior Features
Ceiling Fan(s) , Kitchen Island , Open Floorplan , Primary Bathroom - Shower No Tub , Primary Downstairs , Walk-In Closet(s)
Equipment / Appliances
Convection Oven , Dishwasher , Dryer , Electric Range , Electric Water Heater , Microwave , Refrigerator , Tankless Water Heater , Washer , Washer/Dryer Stacked
Pool
Pool Description
Utilities
Electricity Connected , Water Connected
Additional Rooms
None
Waterfront
No
Parking
Other
Split Floorplan
HOA
HOA Dues
0.00
Construction
Block , Stucco
Floor
Tile
Exterior Finish
Roof Type
Shingle
Fireplace
0
County
Brevard
Gated Community
Furnishings
Unfurnished
Home Warranty
Tax Year
2023
Tax Amount
3728.24
55+ Community
Subdivision
Listing Status
Closed
Property Status
Home Style
Home View
Street
1585 Anchor Lane, Merritt Island, 32952
Zip Code
D. Basile Real Estate, LLC lists and sells Real Estate and Luxury homes in Melbourne Beach, Merritt Island, Cocoa Beach, Lansing Island, Tortoise Island, Barefoot Bay, Cape Canaveral, Cocoa, Grant Valkaria, Indialantic, Indian Harbour Beach, Malabar, Melbourne, Palm Bay, Rockledge, Satellite Beach, Titusville, West Melbourne and surrounding areas in Brevard.
This listing is courtesy of RE/MAX Aerospace Realty. Property Listing Data contained within the D Basile Real Estate website is the property of Brevard MLS and is provided for consumers looking to purchase real estate. Any other use is prohibited. We are not responsible for errors and omissions on this web site. All information contained herein should be deemed reliable but not guaranteed, all representations are approximate, and individual verification is recommended.
Quick MLS Search
Choose the Area, City, then Type of the property you're looking for

Share us on your network!