Listing Address:
3270 S Highway A1a , Melbourne Beach, FL 32951
Price: $3,620
MLS # 1058683
Property Type: Commercial
This property is Active. Please contact us for similar properties.
Property Description:
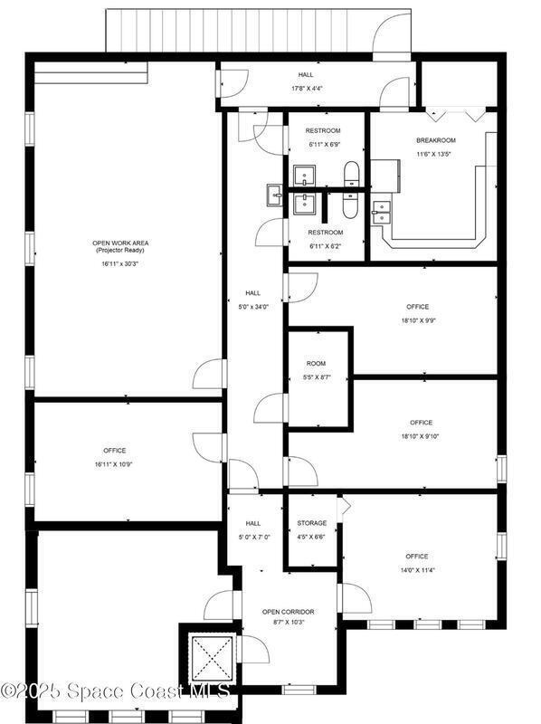
We are pleased to present a well-appointed 2,555+/- SF office property for lease in Melbourne Beach at $17/sf. Located on the west side of Highway A1A across from the Atlantic Ocean, the site offers excellent visibility and accessibility between River Villa Way and River Walk Drive, just one mile north of Driftwood Publix and 13 miles north of Sebastian Inlet. Situated on a 0.53-acre parcel zoned C-Mixed Use Commercial, the property features huge conference room, five private offices, two restrooms, a large breakroom, secondary entry, and is pre-wired, projector-ready, and secured with an alarm system. Combining modern functionality with a prime coastal setting, it offers an ideal opportunity for businesses seeking professional space in Melbourne Beach. The most recent facade signage was permitted for very sizable visibility at 148'' x 32''.
Property Listing Details for 3270 S Highway A1a , Melbourne Beach, FL 32951
Subdivision
Total SqFt.
0
Property Sub-Type
Business
Sale / Lease
Lease
Lot Acres
0.53
County
Brevard
Tax Amount
$0 (2023)
Zoning
Commercial
D. Basile Real Estate, LLC lists and sells Real Estate and Luxury homes in Melbourne Beach, Merritt Island, Cocoa Beach, Lansing Island, Tortoise Island, Barefoot Bay, Cape Canaveral, Cocoa, Grant Valkaria, Indialantic, Indian Harbour Beach, Malabar, Melbourne, Palm Bay, Rockledge, Satellite Beach, Titusville, West Melbourne and surrounding areas in Brevard.
This listing is courtesy of Realty World Curri Properties. Property Listing Data contained within the D Basile Real Estate website is the property of Brevard MLS and is provided for consumers looking to purchase real estate. Any other use is prohibited. We are not responsible for errors and omissions on this web site. All information contained herein should be deemed reliable but not guaranteed, all representations are approximate, and individual verification is recommended.
Quick MLS Search
Choose the Area, City, then Type of the property you're looking for

Share us on your network!