Listing Address:
895 Brunswick Lane, Rockledge, FL 32955
Price: $379,000
MLS # 1058584
Property Type: Residential
1,392 Total SqFt.
Beds: 3
1,392 Living SqFt.
Baths: 2.00
Year Built: 1978
This property is Closed. Please contact us for similar properties.
Property Description:
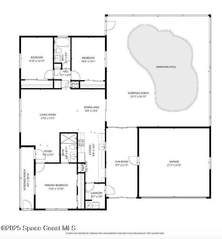
Enjoy the Florida lifestyle in any season with this updated 3/2 home in the heart of Rockledge boasting a spacious fenced in back yard with a screen enclosed and solar heated pool as well as a stone fire pit. Kitchen, bathrooms, and windows have all been updated for a very modern feel. Between the laundry room and two car garage is a well-lit bonus room that could be used as an office, play room, or crafting area. Experience small community vibes while only minutes from I95 and a short drive to the beach. Walk or bike to the park, visit the zoo, play a round of golf, meet friends at the Avenue- it is all within your grasp. Welcome home!
1/23/2026
Sold Price: $360,000
Property Listing Details for 895 Brunswick Lane, Rockledge, FL 32955
Exterior Features
Fire Pit , Storm Shutters
Interior Features
Ceiling Fan(s) , Entrance Foyer , His and Hers Closets , Open Floorplan , Primary Bathroom - Shower No Tub , Primary Downstairs
Equipment / Appliances
Dishwasher , Disposal , Electric Oven , Electric Range , Electric Water Heater , Microwave , Refrigerator
Pool
Pool Description
Heated , In Ground , Screen Enclosure , Solar Heat
Utilities
Cable Available , Electricity Available , Electricity Connected , Sewer Available , Sewer Connected , Water Available , Water Connected
Additional Rooms
None
Waterfront
No
Parking
Garage , Garage Door Opener
Split Floorplan
HOA
HOA Dues
0.00
Construction
Block , Stucco
Floor
Carpet , Tile , Vinyl
Exterior Finish
Roof Type
Shingle
Fireplace
0
County
Brevard
Gated Community
Furnishings
Unfurnished
Home Warranty
Tax Year
2023
Tax Amount
937.33
55+ Community
Subdivision
Listing Status
Closed
Property Status
Home Style
Home View
Street
895 Brunswick Lane, Rockledge, 32955
Zip Code
D. Basile Real Estate, LLC lists and sells Real Estate and Luxury homes in Melbourne Beach, Merritt Island, Cocoa Beach, Lansing Island, Tortoise Island, Barefoot Bay, Cape Canaveral, Cocoa, Grant Valkaria, Indialantic, Indian Harbour Beach, Malabar, Melbourne, Palm Bay, Rockledge, Satellite Beach, Titusville, West Melbourne and surrounding areas in Brevard.
This listing is courtesy of U S Realty Hub LLC. Property Listing Data contained within the D Basile Real Estate website is the property of Brevard MLS and is provided for consumers looking to purchase real estate. Any other use is prohibited. We are not responsible for errors and omissions on this web site. All information contained herein should be deemed reliable but not guaranteed, all representations are approximate, and individual verification is recommended.
Quick MLS Search
Choose the Area, City, then Type of the property you're looking for

Share us on your network!