Listing Address:
439 Gardendale Circle, Palm Bay, FL 32909
Price: $399,999
MLS # 1058575
Property Type: Residential
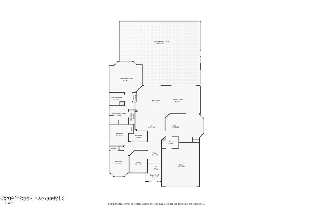
2,013 Total SqFt.
Beds: 3
2,013 Living SqFt.
Baths: 2.00
Year Built: 2005
This property is Closed. Please contact us for similar properties.
Property Description:
They're Not Making More: Preserve-Backed Waterfall Oasis in Monterey Cove at Bayside Lakes***BACK ON MARKET, FINANCING FELL THROUGH***Step through the door and let the view steal your breatha''soaring vaulted ceilings frame a stunning pool and preserve vistas that welcome you home every single day. This 3-bedroom, 2-bathroom retreat with versatile flex space offers 2,013 square feet of thoughtfully designed living in one of Bayside Lakes' most sought-after locations.Your sparkling pool, featuring a waterfall, becomes your personal sanctuary, surrounded by a generous screened lanai that's perfect for entertaining or quiet evenings under the stars. With the home backing to a protected preserve, you'll never have neighbors behind youa''just nature's tranquil soundtrack.The flex room adapts to your life: a home office for remote work, a creative studio for long-awaited hobbies, or a cozy guest room for holiday visitors. The screened entryway adds an elegant first impression.
3/23/2026
Sold Price: $385,000
Property Listing Details for 439 Gardendale Circle, Palm Bay, FL 32909
Exterior Features
Storm Shutters
Interior Features
Breakfast Bar , Breakfast Nook , Ceiling Fan(s) , Entrance Foyer , His and Hers Closets , Kitchen Island , Open Floorplan , Pantry , Primary Bathroom - Shower No Tub , Vaulted Ceiling(s) , Walk-In Closet(s)
Equipment / Appliances
Dishwasher , Disposal , Dryer , Electric Oven , Electric Range , Microwave , Refrigerator , Washer
Pool
Pool Description
In Ground , Screen Enclosure , Waterfall
Utilities
Cable Available , Cable Connected , Electricity Connected , Sewer Connected , Water Connected
Additional Rooms
None
Waterfront
No
Parking
Garage
Split Floorplan
HOA
HOA Dues
0.00
Construction
Block , Stucco
Floor
Carpet , Tile , Vinyl
Exterior Finish
Roof Type
Shingle
Fireplace
0
County
Brevard
Gated Community
Furnishings
Unfurnished
Home Warranty
Tax Year
2023
Tax Amount
3728.19
55+ Community
Subdivision
Listing Status
Closed
Property Status
Home Style
Traditional
Home View
Protected Preserve , Trees/Woods
Street
439 Gardendale Circle, Palm Bay, 32909
Zip Code
D. Basile Real Estate, LLC lists and sells Real Estate and Luxury homes in Melbourne Beach, Merritt Island, Cocoa Beach, Lansing Island, Tortoise Island, Barefoot Bay, Cape Canaveral, Cocoa, Grant Valkaria, Indialantic, Indian Harbour Beach, Malabar, Melbourne, Palm Bay, Rockledge, Satellite Beach, Titusville, West Melbourne and surrounding areas in Brevard.
This listing is courtesy of EXP Realty , LLC. Property Listing Data contained within the D Basile Real Estate website is the property of Brevard MLS and is provided for consumers looking to purchase real estate. Any other use is prohibited. We are not responsible for errors and omissions on this web site. All information contained herein should be deemed reliable but not guaranteed, all representations are approximate, and individual verification is recommended.
Quick MLS Search
Choose the Area, City, then Type of the property you're looking for

Share us on your network!