Listing Address:
1625 Hortana Drive, Merritt Island, FL 32952
Price: $425,000
MLS # 1058115
Property Type: Residential
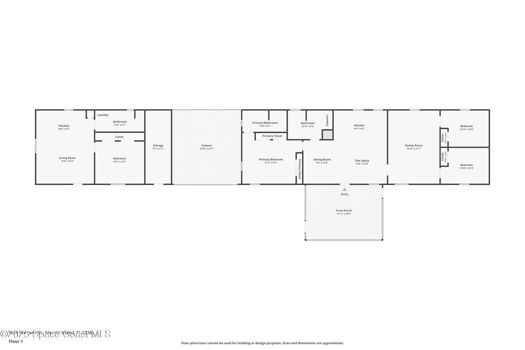
2,484 Total SqFt.
Beds: 4
2,484 Living SqFt.
Baths: 3.00
Year Built: 1960
This property is Closed. Please contact us for similar properties.
Property Description:
Merritt Island property featuring 4 bedrooms, 3 bathrooms on 0.35 acres with no HOA fees. This gated Florida home offers modern updates and income potential.Main House: 3BR/2BA with brand-new roof (2024) and completely renovated kitchen featuring new cabinetry and countertops.Detached Guest Cottage: Separate 1BR/1BA unit perfect for rental income, Airbnb, in-law suite, or multi-generational living.Premium Features:Electric gated entry for securityRV parking with space for boats/trailersOversized 0.33+ acre lot with privacyNo HOA restrictions on parking or modificationsPrime Location: Minutes from beaches, Kennedy Space Center, shopping, and major highways (SR 520/528).Ideal For: Investors seeking cash-flowing property, families needing separate living spaces, RV/boat owners, or vacation rental opportunities.Key Features: New roof | Renovated kitchen | Guest house | RV parking | No HOA | Investment potential | Space Coast | Brevard County
1/09/2026
Sold Price: $400,000
Property Listing Details for 1625 Hortana Drive, Merritt Island, FL 32952
Exterior Features
Interior Features
Breakfast Bar , Ceiling Fan(s) , Eat-in Kitchen , Guest Suite , Kitchen Island , Primary Bathroom - Tub with Shower , Primary Downstairs , Split Bedrooms , Vaulted Ceiling(s)
Equipment / Appliances
Dishwasher , Dryer , Electric Cooktop , Electric Oven , Electric Water Heater , Freezer , Refrigerator , Washer
Pool
Pool Description
Utilities
Cable Available , Electricity Connected , Natural Gas Available , Water Connected
Additional Rooms
None
Waterfront
No
Parking
Attached , Carport , Gated
Split Floorplan
HOA
HOA Dues
0.00
Construction
Frame
Floor
Tile
Exterior Finish
Roof Type
Fireplace
0
County
Brevard
Gated Community
Furnishings
Unfurnished
Home Warranty
Tax Year
2023
Tax Amount
0.00
55+ Community
Subdivision
Listing Status
Closed
Property Status
Home Style
Home View
Street
1625 Hortana Drive, Merritt Island, 32952
Zip Code
D. Basile Real Estate, LLC lists and sells Real Estate and Luxury homes in Melbourne Beach, Merritt Island, Cocoa Beach, Lansing Island, Tortoise Island, Barefoot Bay, Cape Canaveral, Cocoa, Grant Valkaria, Indialantic, Indian Harbour Beach, Malabar, Melbourne, Palm Bay, Rockledge, Satellite Beach, Titusville, West Melbourne and surrounding areas in Brevard.
This listing is courtesy of Compass Florida , LLC. Property Listing Data contained within the D Basile Real Estate website is the property of Brevard MLS and is provided for consumers looking to purchase real estate. Any other use is prohibited. We are not responsible for errors and omissions on this web site. All information contained herein should be deemed reliable but not guaranteed, all representations are approximate, and individual verification is recommended.
Quick MLS Search
Choose the Area, City, then Type of the property you're looking for

Share us on your network!