Listing Address:
442 4th Avenue, Indialantic, FL 32903
Price: $2,685
MLS # 1057991
Property Type: Commercial
This property is Active. Please contact us for similar properties.
Property Description:
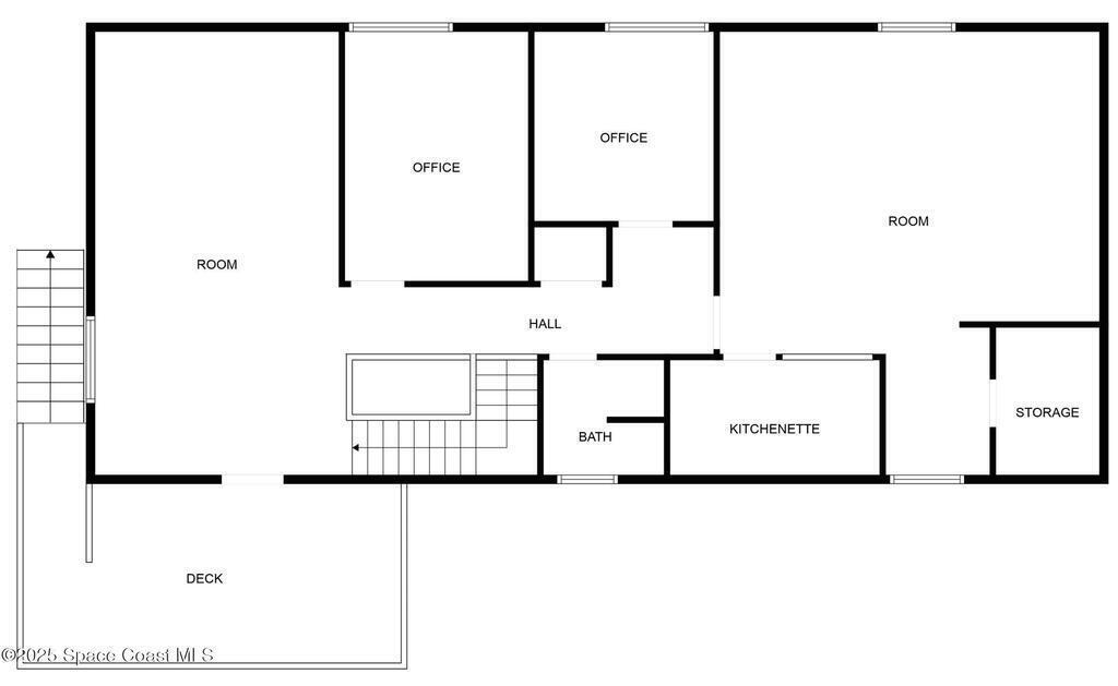
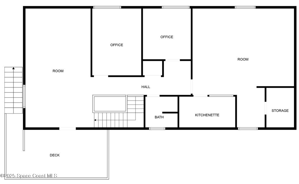
We are pleased to present a move-in ready office space for lease in vibrant Indialantic, Florida. Just one street from 5th Ave (US-192), a street lined with businesses and some of the best local shops and eateries Brevard County has to offer and just 2 miles over the causeway from Historic Downtown Melbourne. This meticulously maintained property offers a well-appointed facade, 2 entries, and tons of parking. The 2nd floor unit is 1,534 sf and features 2 private offices, 2 open work areas, a patio deck, kitchenette, 1 bathroom with shower, large storage/IT closet, furnishings and skylights for lots of natural light! Check it out!
Property Listing Details for 442 4th Avenue, Indialantic, FL 32903
Subdivision
Total SqFt.
1,534
Property Sub-Type
Office
Sale / Lease
Lease
Lot Acres
0.23
County
Brevard
Tax Amount
$6,317 (2023)
Zoning
Commercial/Resi
D. Basile Real Estate, LLC lists and sells Real Estate and Luxury homes in Melbourne Beach, Merritt Island, Cocoa Beach, Lansing Island, Tortoise Island, Barefoot Bay, Cape Canaveral, Cocoa, Grant Valkaria, Indialantic, Indian Harbour Beach, Malabar, Melbourne, Palm Bay, Rockledge, Satellite Beach, Titusville, West Melbourne and surrounding areas in Brevard.
This listing is courtesy of Realty World Curri Properties. Property Listing Data contained within the D Basile Real Estate website is the property of Brevard MLS and is provided for consumers looking to purchase real estate. Any other use is prohibited. We are not responsible for errors and omissions on this web site. All information contained herein should be deemed reliable but not guaranteed, all representations are approximate, and individual verification is recommended.
Quick MLS Search
Choose the Area, City, then Type of the property you're looking for

Share us on your network!