Listing Address:
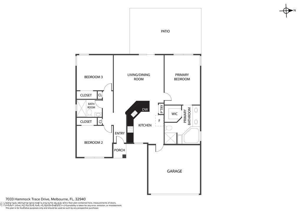
7033 Hammock Trace Drive, Melbourne, FL 32940
Price: $358,000
MLS # 1057000
Property Type: Residential
1,168 Total SqFt.
Beds: 3
1,168 Living SqFt.
Baths: 2.00
Year Built: 1994
This property is Closed. Please contact us for similar properties.
Property Description:
Discover this beautiful 3-bedroom, 2-bathroom lakeside home in the desirable Hammock Trace community of Melbourne! From your own backyard, enjoy STUNNING, vibrant sunsets dancing over the water--a view you'll never get tired of.Inside, you're welcomed into an open, bright, and spacious living area with soaring vaulted ceilings. The kitchen is designed with both style and function in mind, featuring a breakfast bar for casual dining, ample storage, and updates including refreshed cabinets, countertops, and flooring. Sliding glass doors invite natural light in and lead out to a patio with serene water views.The split bedroom layout offers privacy, with the generous primary suite showcasing an ensuite bath complete with dual vanities, a relaxing jetted tub, and a separate shower. Two additional spacious bedrooms share a full bath. A 2-car garage provides convenience, while lush landscaping enhances the home's curb appeal.
1/13/2026
Sold Price: $333,000
Property Listing Details for 7033 Hammock Trace Drive, Melbourne, FL 32940
Exterior Features
Interior Features
Breakfast Bar , Ceiling Fan(s) , Primary Bathroom -Tub with Separate Shower , Split Bedrooms
Equipment / Appliances
Dishwasher , Electric Range , Refrigerator
Pool
Pool Description
Utilities
Cable Available , Electricity Connected , Sewer Connected , Water Connected
Additional Rooms
None
Waterfront
Yes
Water Type
Parking
Additional Parking , Attached , Garage
Split Floorplan
HOA
HOA Dues
0.00
Construction
Block , Concrete
Floor
Tile
Exterior Finish
Roof Type
Shingle
Fireplace
0
County
Brevard
Gated Community
Furnishings
Unfurnished
Home Warranty
Tax Year
2024
Tax Amount
2053.72
55+ Community
Subdivision
Listing Status
Closed
Property Status
Home Style
Home View
Lake , Water
Street
7033 Hammock Trace Drive, Melbourne, 32940
Zip Code
D. Basile Real Estate, LLC lists and sells Real Estate and Luxury homes in Melbourne Beach, Merritt Island, Cocoa Beach, Lansing Island, Tortoise Island, Barefoot Bay, Cape Canaveral, Cocoa, Grant Valkaria, Indialantic, Indian Harbour Beach, Malabar, Melbourne, Palm Bay, Rockledge, Satellite Beach, Titusville, West Melbourne and surrounding areas in Brevard.
This listing is courtesy of Redfin Corp.. Property Listing Data contained within the D Basile Real Estate website is the property of Brevard MLS and is provided for consumers looking to purchase real estate. Any other use is prohibited. We are not responsible for errors and omissions on this web site. All information contained herein should be deemed reliable but not guaranteed, all representations are approximate, and individual verification is recommended.
Quick MLS Search
Choose the Area, City, then Type of the property you're looking for

Share us on your network!