Listing Address:
188 Pinellas Lane, Cocoa Beach, FL 32931
Price: $474,999
MLS # 1056302
Property Type: Residential
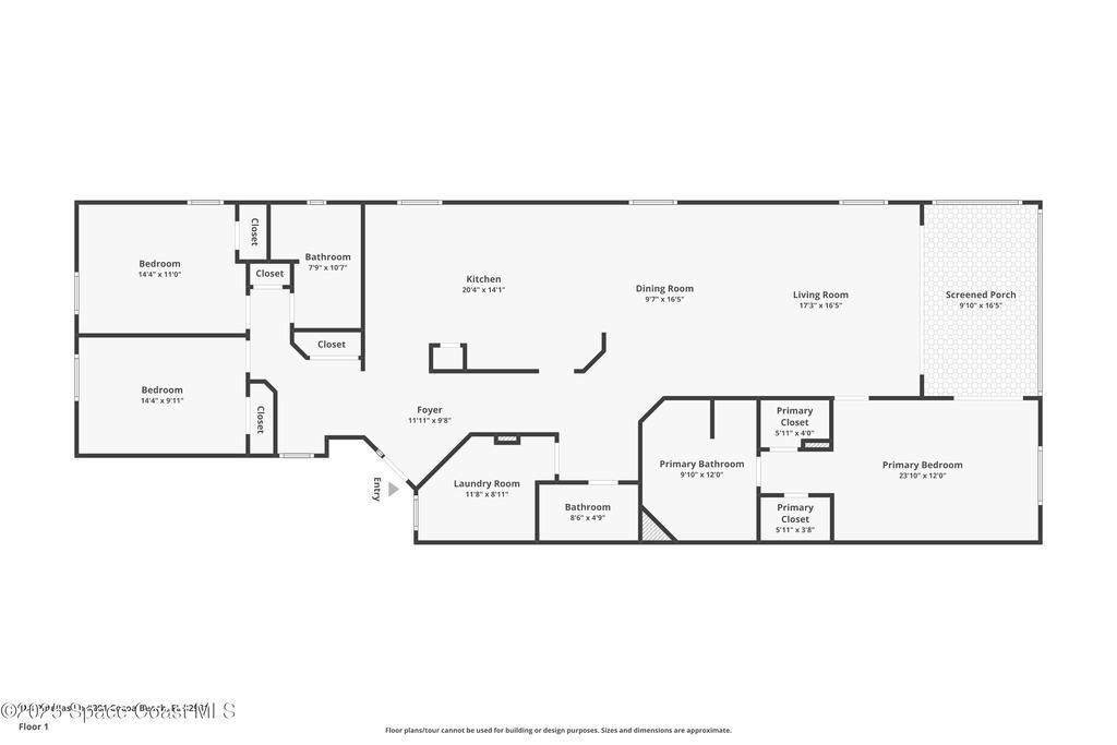
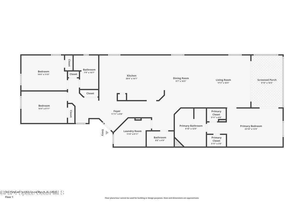
2,068 Total SqFt.
Beds: 3
2,068 Living SqFt.
Baths: 3.00 ½ Baths: 1
Year Built: 1994
This property is Closed. Please contact us for similar properties.
Property Description:
MOTIVATED SELLER!!! Experience the epitome of luxury living with this stunning condo located at Diamond Bay Condos in Cocoa Beach. Style radiates throughout with modern updates including quartz countertops in the spacious kitchen and bathrooms, stylish fixtures throughout, and a primary bathroom that will not disappoint! White shaker cabinets line the walls in the updated kitchen providing plenty of storage for all your kitchen needs. Three generously sized bedrooms with the two split from the primary allows for privacy. The two bedrooms share a full bathroom with double sinks. In the heart of the condo is a 1/2 bath perfect for guests. The kitchen overlooks the living/dining combination that has plenty of space for any style of furniture. Nestled within a picturesque riverfront complex, this condo delivers unmatched river access for boating, kayaking, fishing, naturing watching, rocket launches or spectacular sunset views. POTENTIAL TO LEASE OR BUY BOAT SLIP FROM OTHER OWNERS
2/25/2026
Sold Price: $465,000
Property Listing Details for 188 Pinellas Lane, Cocoa Beach, FL 32931
Exterior Features
Balcony , Storm Shutters
Interior Features
Breakfast Bar , Entrance Foyer , His and Hers Closets , Open Floorplan , Pantry , Primary Bathroom - Shower No Tub , Split Bedrooms , Walk-In Closet(s)
Equipment / Appliances
Dishwasher , Disposal , Electric Oven , Electric Water Heater , Microwave , Refrigerator
Pool
Pool Description
Utilities
Cable Connected , Electricity Connected , Sewer Connected
Additional Rooms
None
Waterfront
Yes
Parking
Parking Lot , Underground
Split Floorplan
HOA
HOA Dues
0.00
Construction
Block
Floor
Tile , Vinyl
Exterior Finish
Roof Type
Membrane
Fireplace
0
County
Brevard
Gated Community
Furnishings
Negotiable
Home Warranty
Tax Year
2024
Tax Amount
5022.12
55+ Community
Subdivision
Listing Status
Closed
Property Status
Home Style
Home View
River , Trees/Woods
Street
188 Pinellas Lane, Cocoa Beach, 32931
Zip Code
D. Basile Real Estate, LLC lists and sells Real Estate and Luxury homes in Melbourne Beach, Merritt Island, Cocoa Beach, Lansing Island, Tortoise Island, Barefoot Bay, Cape Canaveral, Cocoa, Grant Valkaria, Indialantic, Indian Harbour Beach, Malabar, Melbourne, Palm Bay, Rockledge, Satellite Beach, Titusville, West Melbourne and surrounding areas in Brevard.
This listing is courtesy of RE/MAX Aerospace Realty. Property Listing Data contained within the D Basile Real Estate website is the property of Brevard MLS and is provided for consumers looking to purchase real estate. Any other use is prohibited. We are not responsible for errors and omissions on this web site. All information contained herein should be deemed reliable but not guaranteed, all representations are approximate, and individual verification is recommended.
Quick MLS Search
Choose the Area, City, then Type of the property you're looking for

Share us on your network!